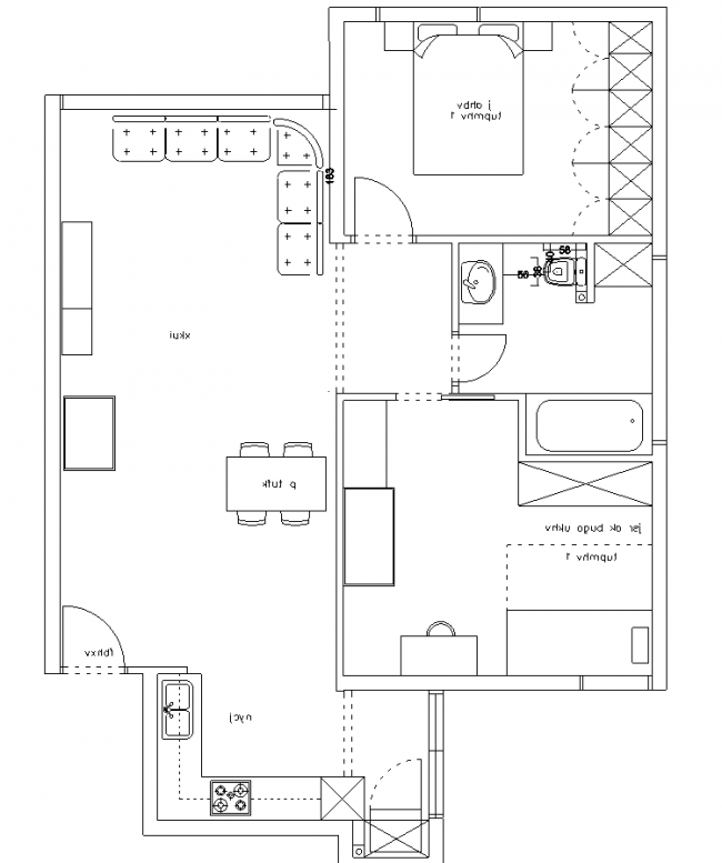
הלקוח ביקש להגדיל את חדר הילדים ןלהגדיל את חדר הרחצה.
יחד עם זאת לשפץ את המטבח מחדש ולשנות את מיקום האיחסון

משתתף במבצע

|
פרוייקט גמר
16.08 (23:00) |
|
|
מדידה עבור פרויקט מדגמי
31.07 (19:32) |
|
|
פריסה מטבח
27.07 (14:57) |
|
|
חתך מדרגות בטון ומעקה זכוכית
29.06 (10:03) |
|
|
פרט דלת הרמוניקה וחלון
28.05 (13:30) |
|
|
חזית עבודה של מהט
7.05 (11:57) |