פרטי בנין
בחלק זה של הספריה תוכלו למצוא פרטי בניין לעיון והורדה.
אם אתם מנסים לאתר פרט מסוים תוכלו לעשות זאת בעזרת מנוע החיפוש
או בעזרת החלוקה לתגיות המופיעה בהמשך.
פרטי בנין אחרונים
-
פרט ריצוף
4.08.19ריצוף חוץ, אבן טבעית פראית משתלבת בשני סוגים -
כיפת תאורה
31.07.19כיפת תאורה. קונסטרוקציית פלדה עם זכוכית וחיבור מחובר לתקרת בטון -
פרט קרניז אלומינים לגג
30.07.19פרט קרניז הקפי לגג בחיפוי לוחות אלומיניום -
פרט חלון-קיר בחיפוי אבן
29.07.19פרט חיבור חלון לקיר בחיפוי אבן הכולל משקוף עיוור. -
חתך בריכת צמחי מים למפל מים
23.07.19חתך של בריכה למפל מים אשך מכיל צמחי מים בריכה המקבלת את המים הנופלים משוחות מים מצדדי שביל מעבר -
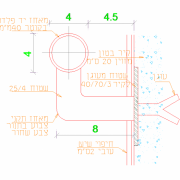
פרט יחבור מאחז יד לקיר
20.07.19פרט מאחז יד לקיר של MODEA, כולל מרכזי חורים, פרופיל נירוסטה 316 עם צינור עגול 40 ממ בעובי 3ממ -
פרט של מאחז יד
16.07.19פרט של מאחז יד המחובר ישירות לקיר דרך עוגן -
פרטי גז ראדון לרישוי
15.07.19פרט יישום גז ראדון לביצוע ולבקשה להיתר (עיריית ירושלים בעיקר) -
רחבת כיבוי אש
15.07.19רחבת כיבוי אש בלוק לתוכנית בטיחות -
פרט מדרגות
14.07.19מדרגות חזית חתך מדרגה ראשונה ואחרונה ומדרגה טיפוסית. גליון מדרגות -
מדרגות למבנה ציבור
14.07.19מדרגות מפלס 1 עם מעלית מתאים למבנה ציבור -
פרטי בניין
12.07.19שלל של פרטים מגוון רחב של פרטי בניין העוזרים בפיתוח המבנה -
חלון הזזה עם תריס מונובלוק
9.07.19פרט בניין של חתך חלון הזזה עם תריס מונובלוק מפרט את צורת העיגון התריס , -
אינסטנילאציה
7.07.19בלוקים כללים אינסטלציה כללים לתוחניות עבודה ושרטוטים -
מעקה זכוכית
3.07.19פרט מעקה זכוכית . חזית המעקה. חיבור המעקה זכוכית לרצפת הבטון -
פרט קולטן בקיר אבן
3.07.19פרט קולטן 4" בתוך קיר אבן. קיר האבן בנוי בשיטת איזולציה פנימית. חתך הקיר בלוק, איזולציה, איטום, בטון, אבן. -
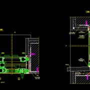
פרט מדרגות בטון בחיפוי אבן
25.06.19פרט מדרגות בטון בחיפוי אבן. חתך באזור מהלך, חתך באזור מפגש מהלך-פודסט -
פרט מאחז יד
7.02.19פרט מאחד יד ע"פ תקן 1918 למאחזי יד אשר נדרש לבטיחות בכלל ולנכים בפרט. -
מקלחת עם ריצוף בשיפוע
13.01.19מקלחת מרוצפת ללא אגנית עם שיפוע בריצוף -
מקלחת לנכים
13.01.19פרט מקלחת לנכה עם מושב ומאחזי יד
לא מצאת? פשוט חפש.
רשימות פרטי בנין על פי תגיות
המומחים של Saf
-
פני אלימלך
אזור עבודה: כל הארץטלפון: 0507755878
-
עפרה יעיש תכנון ואדריכלות פנים
אזור עבודה: כל הארץטלפון: 0503884846
-
ארטיום שירותי שרטוט/שומה וטאבו
אזור עבודה: כל הארץטלפון: 0527022177
-
גילי לידסקי
אזור עבודה: רעננה - כפר סבאטלפון: 052-6158568
-
סטודיו יעקב אבישי
אזור עבודה: כל הארץטלפון: 0542118681
חדשות אחרונות
-
מחפשים מקצוע חיוני בלב מערך ההנגשה?
4.11.25מורשה לנגישות מבנים, תשתיות וסביבה (מתו״ס): מקצוע חיוני בלב מערך ההנגשה בישראלצורך חברתי ורקע חוקיהנגשת מבנים במרחב הציב... -
חוקרים בטכניון זכו בפרס עיצוב יוקרתי
1.11.25חוקרים בטכניון זכו בפרס עיצוב יוקרתי על פיתוח טכנולוגיה חדשה להגנה על שתילים צעיריםהדוקטורנט עופר אסף ופרופ' אהרן שפרכר ... -
פרויקטי גמר מהחוג לארכ בביהס לעיצוב של אונ חיפה
26.07.25כשהקרקע נשמטת - האדריכלות מגיבהמהנגשה אזרחית מחודשת של קריית הלאום בירושלים, דרך תכנון מחדש של מרחב תעשייתי פחמי בחדרה, ...
תרום גם אתה!
הוסף קובץ לספרייה הפתוחה של אתר Saf. טען קובץ מקורי
הוסף קובץ לספרייה הפתוחה של אתר Saf. טען קובץ מקורי
עקוב אחר פרטי בנין חדשים באתר.
RSS







