חיפוש - סימבולים / בלוקים , אור , שיפוץ |1|
לא מצאת? פשוט חפש.
-
שיפוץ פנימי של בניין
5.04.21שיפוץ פנימי של בניין באורוגואי כולל הריסת קירות ובנייה של מחיצות חדשות שיפוץ של שירותים. -
שיפוץ דירה קטנה בגבעתיים
12.09.17הלקוחות דרשו- חדר ילדים מרווח יותר, מטבח חדש עם אי, שולחן מחשב בסלון, מקלחת מרווחת. מצורף השרטוט שנבחר על ידי הלקוחות כסופי -
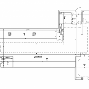
תכנית הריסה בית פרטי
11.04.24תכנית הריסה שיפוץ בית פרטי הריסה של תקרות גבס , שבירת קירות ופתיחת חלונות תוך שינוי מבנה המטבח והחלל הציבורי -
תוכניות שיפוץ דירה
3.06.21שיפוץ בית כולל תוכנית הריסה, בינוי, חשמל ופריסות מטבח -
שרטוט שירותים
19.11.24שירטוט חדר רחצה שירותים ומקלחון לשיפוץ בבית ישן. -
טבלת משקלי ברזל לפי קוטר
24.05.16לעזר לכל קבלן או אדם אשר צריך להזמין ברזל -
רהיט חלל מגורים
6.03.24מזנון לסלון, רהיט לחלל מגורים רהיט קליל ולא עמוס יחידת איחסון קטנה -
פרט חיבור מחסום רצפה
5.11.17פרט חיבור מחסום רצפה - פרט זה מיועד למטבחים ציבוריים של מעונות גנים ובתי ספר וכדומה. הסל מיועד לקלוט את כל האשפה ולאפשר ניקוי מהיר של הרצפה אל התעלה. ולמניעת מעבר של ריחות. -
פרט מעבר צינור מים בקיר פנימי
5.11.17פרט מעבר צינור מים בקיר פנימי של מרחב מוגן . מעוגן עם שרוול תקני, ואטום למניעת גזים. -
שרטוט אדריכלי
27.11.22מדידה אדריכלית לבנק פועלים בנתיבות לצורך שיפוץ מחדש -
שרטוט דירה
11.08.24שרטוט של שיפוץ דירה ללקוח פלוס הרחבה של מטבח ועוד חדר שיוצא מהסלון דירה ללקוח שגר בקומה שניה באיזור המרכז שהוסיף הרחבה מבניה קלה







