חיפוש - גבס , מטבח |1| - דף 14
לא מצאת? פשוט חפש.
-
ליווי חלקי
31.07.15אתם יודעים שאתם רוצים שינוי אבל בלי להפוך את הבית? אני לרשותכם בייעוץ ממוקד לפי שעות. בליווי חלקי אני עוזרת בפרויקטים קטנים יותר: - בהחלטה על דירה או בית לקניה (על גבי תכניות קיימות) - תכנון מטבח - רהוט מחדש של חדרים - תכנון ועיצוב חדרי שינה, חדרי אמבטיה ועוד. -
כיורים - כיור ומטבח
19.07.23כיורים לכל שימוש - כיור , מטבח בכמה גדלים וכמה סוגים .כולל כיור כפול -
מטבח מודרני דגם דוד
25.01.18מטבח דגם יהלום דוד, מטבח מודרני בסגנון כפרי, עיצוב מותאם לסגנון קלאסי או למשוך לסגנון כפרי. מטבחי אלומניום ואו מטבחי זכוכית בעיצוב מותאם. רשת המטבחים המובילה בישראל למטבחי יוקרה מודרניים ומטבחים כפריים מציגה תצוגת מטבחים בלתי נשכחת. הדמיה מלאה לגודל מתאים ניתן לקבל מול מעצב צמוד בתיאום פגישה -
שולחן צמוד קיר למטבח
16.01.25שולחן צמוד לקיר עם 5 כסאות מטבח בגודל סטנדרט אפשרי תחת חלון מראה וכו' -
בלוקים - למחייה
27.04.22סלון,מטבח,שירותים, בלוקים לשימוש -
בלוקים לאוטוקד
19.12.22בלוקים לשימוש אישי של כל אחד הכולל כלים סניטרים וכלי מטבח וגם עציץ לנוי גדול -
שולחן משתנה-ריבועי
17.02.21שולחן עם קגליים מעוטרות. מתאים להיון שולחן פינת אוכל/מטבח/סלון. אפשר לשחק עם גובה אורך רוחב. -
חלון שנראה בחזית או בפריסה
29.07.25חלון בחזית / פריסה 140/100 מתאים לבית מגורים ,מטבח,+מידות וסימון של זכוכית -
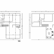
תכנית וילה קטנה
19.06.21תכנית וילה כולל מטבח חדרי שינה וריהוט -
בלוק אי וכיור
5.01.23בלוק של משטח עבודה מסוג אי עבור מטבח שוכלל בתוכו 5 מקומות ישיבה בצידו האחד כשבצידו השני משטח עבודה הכולל כיור ניתן להוריד את הכיור ולהוסיף כיריים במקום לפי הצורך -
יחידת דיור
13.06.21יחידת דיור מפורטת , מטבח, חדר מגורים וחדר שינה -
מידות דירה קטנה
23.04.23מידות לדירה קטנה בת 4.5 חדרים עם מקלחת + שירותים ועוד שירותים בודד. הכוללת מרפסת וממד עם מטבח גדול וסלון מחובר. -
דירת קבלן סימבולים מיטות כורסא
22.02.23דירת קבלן תוכנית סימבולים של כורסאות מיטות מטבח ספות ועוד







