חיפוש - שונות , מטבח , מים |1|
לא מצאת? פשוט חפש.
-
תכנון מטבח
1.05.22תכנון מטבח בבית פרטי, תכנון מטבח עם אי ובצורה מלבנית -
תכנון מטבח בחזית אחת
19.07.22תכנון מטבח הכולל מקרר ידיות וחלון בלגי קטן. חלוקת ארונות בגובה 220 הכולל ברז כיור ושיש -
תוכנית מטבח מבט על
19.01.23תוכנית מטבח מבט על + פריסות למטבח בבית פרטי עם אי חצי אי מטבח. -
תוכנית מבט על מטבח פתוח עם אי
1.05.24מבט על, מטבח פתוח עם אי ומזווה, עם מידות לגודל משטחי שיש בשרי וחלבי -
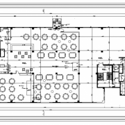
מטבח קצה
20.07.21מטבח קצה המיועד לאולם אירועים קטן וכו -
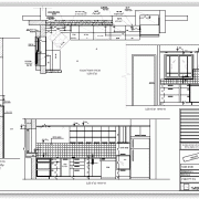
תוכנית מטבח - דוגמה
25.05.07דוגמה לתוכנית מטבח, פריסות ותכנון ארונות. התוכנית מראה מטבח פונקציונלי קטן יחסית בבית פרטי. דוגמה לשימוש סטודנטים -
תכנון מטבח
21.06.21תכנון מטבח עם אי ל 4 משובים נפתח ל 12 סועדים -
מטבח בבית שלי
25.06.21דירה בקרית אונו תכנון מטבח אצל נגר פלוס תוכנית של כלל הבית -
מטבח פריסות ותכנית
9.11.13מטבח לדוגמא מותאם לקנ"מ 1:25 כולל פריסות. חומרי גמר לבחירה.







