חיפוש - פרטי בנין , משקוף |1|
לא מצאת? פשוט חפש.
-
נגרות אומן - דלת עץ - חתך אופקי במשקוף וכנף
7.10.07חתך אופקי בפרטים הבאים: 1. מפגש קיר - משקוף עץ וכנף בצד הציר. 2. מפגש קיר - משקוף עץ וכנף בצד הידית והנעילה. 3. מפגש כנף עץ לכנף עץ בדלת כפולה. מפתח הפרטים נמצא בקובץ זה: -
משקוף עיוור לחלון אלומיניום בקיר בטון גלוי
22.08.07שלוש אלטרנטיבות לפרט משקוף עיוור בחלון אלומיניום המותקן בקיר בטון גלוי. ההבדל בין האלטרנטיבות הוא במיקום החלון בקיר ובסוג העיגון של משקוף הפלדה. מסטיק לחוץ משמש לאיטום המרווח בין המשקוף והיציקה. -
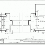
נגרות - ארונות בנוים, משקוף פרופיל פלדה וכנף עץ
25.11.07מפתח פרטים לארונות בנוים בקיר העשוים מסגרת פלדה ובתוכה כנף עץ ופורמיקה. הארון מורם מפני הריצוף. הפרופיל השמש מסגרת לארון הוא פרופיל L מפלדה. הפרטים עצמם נמצאים כאן: חתך אנכי בארון בנוי, משקוף פרופיל פלדה וכנף עץ חתך אופקי בארון בנוי, משקוף פרופיל פלדה וכנף עץ -
משקוף פח בקיר גבס
2.09.07חתך אנכי במשקופי פח וחיבורם בקיר גבס. הפרט מיועד לשימוש במבני ציבור בהם עשויה להיות שחיקה של המשקופים (למשל בתי ספר). בפרט נראה חיבור לקיר אורך וחיבור משקוף אל קיר גבס ניצב. -
פרט חלון שירותים
22.10.20פרט חלון שירותים עם חיבור לקיר אבן בתלייה -
קיר מסך בקיר דופן כפולה - פרט 2 - משקוף צד
28.04.07שרטוט עקרוני של קיר דופן כפולה ובו חלק הבנוי כקיר מסך - פרט חיבור משקוף צד בקיר המסך אל הקיר המחופה לבנים, כולל פתרון לאיטום נגד מים. -
פרט משקוף מעלית
13.10.21פרט משקוף מעלית- מפגש לוח דקטון וזכוכית -
דלת הזזה אל כיס, משקוף פח כנף עץ - מפתח חתכים
3.12.07מפתח לחתכים וחזית לשתי דלתות הזזה - האחת דלת כנף בודדת והשניה כנף כפולה לימין ולשמאל. הדלתות נגררות אל כיס בנוי, עובי הקיר 15 ס"מ, משקוף פח מכופף בולט מקו הקיר מקבל את כנף העץ. לפרטים ראה : כנף אחת - חתך אופקי שתי כנפים - חתך אופקי חתכים אנכים -
חלון קיפ פרטי בניין עם משקופים
27.03.23חלון קיפ פרטי משקופי אלומיניום חתך ותכנית -
משקוף פח בקיר עם תפר התפשטות
14.10.07חתכים במשקוף בו עובר תפר התפשטות בהצמדת מבנה חדש למבנה קיים. הפרטים מראים: חתך אנכי, משקוף עליון עשוי פח, סף תחתון ובו זויתני פליז או נירוסטה. חתך אופקי במשקוף צד. הקיר מחופה טיח או קרמיקה, ציפוי פינות הקיר בפלב"מ, התפרים מופרדים בפוליאסטירן מוקצף וסגורים בצינור גומי ספוגי בלחץ ואיטום ב RPV. -
פרט דלת הזזה
1.09.16רצפת בטון קונסטרוקטיבי עליו מונח חול, טיט, ואריכי גרניט פורצלן (כלפי פנים וחוץ למבנה) בטון רזה ברדיוס X עליו מונח זוויתן פלדה, מסטיק איטום וסף פליז. עליו מולבש פרופיל אלומיניום ודלת הזזה







