חיפוש - פרטי בנין , ריצוף , רצפה |1|
לא מצאת? פשוט חפש.
-
מפגשי ריצוף שונים - 1
27.08.07חתכים אנכים בין ריצופים שונים. הפרטים מראים את הסגירה והסרגלים הנדים בחיבור בין הרצפות השונות. 1. קרמיקה - טרצו. 2. טרצו - שטיח. 3. טרצו - PVC. לכל אחד מהנ"ל שי פרט לריצוף מתוכנן מראש ופרט לריצוף על ריצוף קיים. -
ריצוף בצורת מנורת שבעה קנים
17.07.07פרט לביצוע מיוחד של ריצוף הבונה תמונה של מנורת שבעה קנים. בוצע עבור בית כנסת בבני ברק על ידי מחלקת המוצרים המיוחדים של אקרשטיין. -
מפגשי ריצוף שונים - 2
27.08.07חתכים אנכים בין ריצופים שונים. הפרטים מראים את הסגירה והסרגלים הנדים בחיבור בין הרצפות השונות. 1. טרצו יצוק במקום - קרמיקה. 2. טרצו יצוק במקום - קרמיקה מודבקת מעל. 3. טרצו - שטיח. 4. קרמיקה - שטיח. 5. ריצוף - טרצו יצוק במקום. 6. טרצו יצוק במקום - PVC מודבק מעל. -
גמר ליד קיר או מסד ברצפות בטון
22.08.07שני פרטי חתך אנכי לרצפות בטון ליד קיר או מסד - רצפה צפה ורצפה תלויה. בפרטים נראת קורת המסד והטיח החיצוני, שכבת הבידוד בין המסד לקיר ביריעות ביטומניות או בנייר טול, ריצוף הפנים וטיח הפנים. -
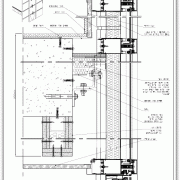
חתך אנכי במפגש קיר מסך ורצפה כולל מחסום עשן
5.06.07פרט חתך אנכי ברצפת קומה ומפגש עם קיר מסך (2 חלוקות של הקיר) כולל מחסום עשן בנקודת העיגון של הקיר והרצפה. סגירה בחלק התחתון בתקרה תלויה ופרט סגירה אל קורה מעל ריצוף בצד העליון. ריצוף קומה בהדבקה ופח פנימי לסגירת פנל הריצוף. -
איטום תחתית קיר חוץ עשוי לבני זכוכית
11.12.07פרט חתך אנכי בקיר חוץ עשוי לבני זכוכית שתחתיתו בגובה הריצפה. בפרט נראה אדן רחב בתחתית הקיר המקבל עליו את לבני הזכוכית. ריצוף הפנים מוגבה מריצוף החוץ. איטום תחתית הקיר נעשה מבחוץ במפלס נמוך יותר הכולל יריעות איטום ורולקה. בין לבני הזכוכית זיון מוטות פלדה. ריצוף החוץ נעשה באבן משתלבת. -
סף יציאה לחצר עם קרמיקה על משטח יצוק
30.09.07סף יציאה מפנים הבית אל מרפסת או משטח חיצוני המחופים קרמיקה. היציאה עם מדרגה מינימלית מתחת לדלת, איטום במריחה על גבי המדה לשיפועים. הפרט כולל גם מעבר בקצה אל ריצוף אבן משתלבת. -
חוצץ רטיבות בקיר פנים ובקיר חוץ
30.09.07חתכים אנכיים בתחתית קיר הכוללים חוצץ רטיבות. 1. מחיצת פנים עשויה בלוקים או בטון, בתחתיתה נייר טול המודבק לרצפה על ידי אספלט ביטומני חם. 2. קיר חוץ איטונג מטוייח, ריצוף פנים באריחים וחוץ מונמח מהמסד ומרוצף טרקוטה. -
איטום תחתית קיר חוץ מחופה אבן
23.09.07פרט חתך אנכי דרך קיר חוץ. הקיר מחופה בצידו החיצוני באריחי אבן בתליה, ריצוף חוץ באבן משתלבת. צידו הפנימי של הקיר טיח. פרט האיטום מראה את המדרגה בתחתית הקיר והדבקה של נייר טול תלת שכבתי. האיטום בחצר המרוצפת נעשה בגובה נמוך יותר ובשיפוע החוצה. -
תפר התפשטות ברצפה בפס נחושת
12.11.07פרט חתך אנכי ברצפת בטון מחופה ריצוף אריחים בנקודת תפר התפשטות. הפרט מראה את מילוי התפר בפוליסטירן מוקצף, שני סרגלי נחושת מוצבים מכל צד של התפר משמשים מעצור לטיט ולריצוף. בין הסרגלים מוצב מעל לתפר סרגל נחושת בצורת T המגשר על המרווח.







