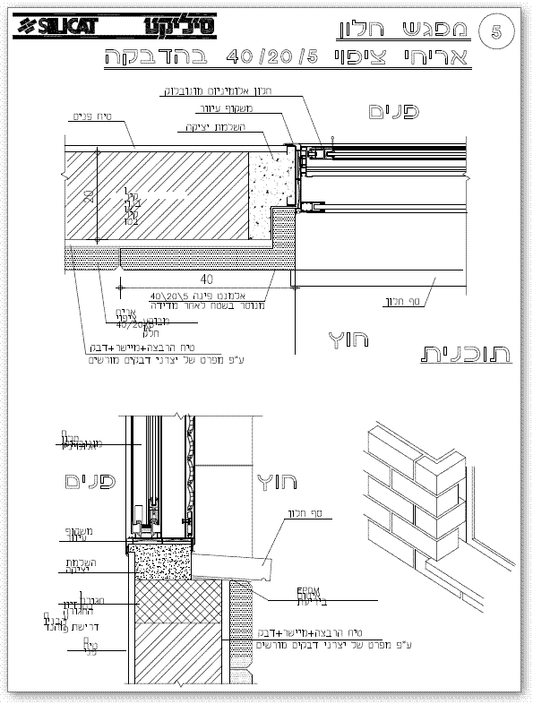
בפרט מוצע שימוש באלמנט פינה מיוחד והשלמת היציקה לתפיסת משקוף עיוור לחלון.

משתתף במבצע

|
רשימת אלומיניום
10.03 (10:21) |
|
|
פרגולת עץ
27.11 (08:57) |
|
|
פרט חיבור קיר זכוכית עם רצפה
17.11 (11:23) |
|
|
מתקן מסבכים מפלדה בקובץ סגור
2.11 (09:36) |
|
|
פרט זיון גרם מדרגות
2.11 (09:30) |
|
|
חיבור מאחז יד לקיר בטון
9.10 (12:20) |