סימבולים / בלוקים
חלק זה של הספריה מרכז עבור אדריכלים בלוקים וסימבולים לתוכנת אוטוקאד ותוכנות שרטוט דומות. אם ברצונכם
למצוא בלוק להורדה, תוכלו לאתר אותו דרך מנוע החיפוש של האתר או על פי
התגיות.
סימבולים / בלוקים אחרונים
-
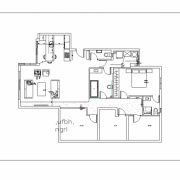
תכנית רצפה
16.02.20תכנית בסיס, 30 על 30, חלק קטן מתוך שוק העלייה הנמצא בת"א. -
בלוקים דינמיים
16.02.20בלוקים דינמיים למטבח, ולאמבטיה, וריהוט, ודלת וחלון עם הרבה אפשריות -
ספסל גינה- בלוק
16.02.20בלוק אוטוקד של ספסלי גינה בחזית -
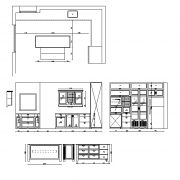
פרטי אדריכלות
16.02.20פרטי אדריכלות ובניין כגון: כיסאות, דלתות, ספות, מפלסים, ועוד מספר פרטי בניין -
ריהוט לבית
16.02.20פינת אוכל ספה מיטות מכתבה ארון -
בלוקים לתכנון נוף
16.02.20בלוקים לאדריכלית נוף,הנדסאי נוף,מתכנני נוף,בלוקים של צמחיה,עצים,רהיטים וכו -
הדום ישיבה
16.02.20הדום ישיבה לסלון אורך 190 ס"מ רוחב 50 ס"מ -
שולחנות ומיטות
16.02.20ריהוט חדרי שינה כולל שולחנות כורסאות מיטות -
חלון ודלת ממד
16.02.20חלון ממד בתוכנית חזית וחתך דלת ממד בתוכנית -
רהיטים לבית או משרדים
15.02.20מגורים, בניה ירוקה, משרדים רהיטים -
קומה מונגשת
13.02.20קומת חדרים - מעלית ומדרגות. מסדרונות ופתחים רחבים -
בלוק חלון של תכנית
13.02.20יצרתי חלון בלוק OK 100 UK 100 מתאים לכל תכנית -
דלת ברזל
12.02.20דלת רפרפת מברזל משמשת בד"כ לחדר פחים -
מחשב בחזית ותכנית
12.02.20מסך מחשב נייח גדול המופיע בחזית ובתכנית לשימוש במשרד בית ועוד.... -
מכוניות
12.02.20בלוקים של מבטים שונים של כל מני סוגי מכוניות לתכניות, חתכים חזיתות... -
חדר ילדים
12.02.20בלוקים ופרטי בניין במיוחד עבור חדר ילדים -
בלוקים שירותים
12.02.20בלוקים -שירותים , בחזית, בחתך, ותוכנית . -
פרט חיבור בין פנלים
12.02.20פרט חיבור בין פנלים, גג מכופף גלי פרט חיבור בין פנלים גג מכופף גלי -
אסלה סמויה
10.02.20פרט של אסלה סמויה כולל מידת גובה רצויה של האסלה ממפלס ריצוף -
בלוק-חלון ודלת דינמי
9.02.20בלוק דימני של חלון חוץ ודלת כניסה קלאסי
לא מצאת? פשוט חפש.
רשימות סימבולים / בלוקים על פי תגיות
המומחים של Saf
-
הדר כהן - שירותי שרטוט למעצבים
אזור עבודה: כל הארץטלפון: 0522454389
-
לייה סלה
אזור עבודה: כל הארץטלפון: 0523130009
-
ארטיום שירותי שרטוט/שומה וטאבו
אזור עבודה: כל הארץטלפון: 0527022177
-
מושי גיטליס - צלם אדריכלות
אזור עבודה: כל הארץטלפון: 052-4759925
-
פני אלימלך
אזור עבודה: כל הארץטלפון: 0507755878
חדשות אחרונות
-
מחפשים מקצוע חיוני בלב מערך ההנגשה?
4.11.25מורשה לנגישות מבנים, תשתיות וסביבה (מתו״ס): מקצוע חיוני בלב מערך ההנגשה בישראלצורך חברתי ורקע חוקיהנגשת מבנים במרחב הציב... -
חוקרים בטכניון זכו בפרס עיצוב יוקרתי
1.11.25חוקרים בטכניון זכו בפרס עיצוב יוקרתי על פיתוח טכנולוגיה חדשה להגנה על שתילים צעיריםהדוקטורנט עופר אסף ופרופ' אהרן שפרכר ... -
פרויקטי גמר מהחוג לארכ בביהס לעיצוב של אונ חיפה
26.07.25כשהקרקע נשמטת - האדריכלות מגיבהמהנגשה אזרחית מחודשת של קריית הלאום בירושלים, דרך תכנון מחדש של מרחב תעשייתי פחמי בחדרה, ...
תרום גם אתה!
הוסף קובץ לספרייה הפתוחה של אתר Saf. טען קובץ מקורי
הוסף קובץ לספרייה הפתוחה של אתר Saf. טען קובץ מקורי
עקוב אחר סימבולים / בלוקים חדשים באתר.
RSS









