סימבולים / בלוקים
חלק זה של הספריה מרכז עבור אדריכלים בלוקים וסימבולים לתוכנת אוטוקאד ותוכנות שרטוט דומות. אם ברצונכם
למצוא בלוק להורדה, תוכלו לאתר אותו דרך מנוע החיפוש של האתר או על פי
התגיות.
סימבולים / בלוקים אחרונים
-
סימון מפלס לתכניות
9.02.20סימון מפלס לתכניות עם ציון גובה פני ריצוף וגובה פני בטון. -
חלון לחזית
9.02.20בלוק דינמי של חלון לחזית כולל 12 אפשרויות חלוקהה, מידות גובה ורוחב משתנות -
ספסל שלושה מושבים
9.02.20ספסל לתכניות\ חתכים -
בלוקים בר
9.02.20בר משקאות מעוצב בסגנון צורות גאומטריות הבר מכיל כיסאות ישיבה עגולים,בקבוקי יין,מדפי עץ עם תאורה שונה... -
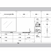
מטבח כפרי עם אי
9.02.20מטבח כפרי עם אי- מטבח בצורת "ר" כולל אי, וכולל יחידת ארון עליון עם מוט לכוסות -
תכנון ואביזרי מטבח
9.02.20אביזרים למטבח, תכנון מטבח וכדומה -
חלון דינאמי עם משקוף נסתר
9.02.20בלוק דינאמי של חלון קלאסי סטנדרטי -
בעלי חיים
9.02.20אוסף של בעלי חיים שונים, מבט על, מבט צד, מלפנים -
טלוויזיה
9.02.20קובץ מכיל דגמים של טלוויזיה ומחשבים למשרד ולבית , לתכנית- מבט ולחזית , בלוק מעולה נוח ויפה -
עמודים רומיים
6.02.20עמודים רומים קלאסיים בסגנון מלכותי, עמוד חלק ועמוד בעל בסיס מעוטר -
תכנית מדרגות
6.02.20תכנית מדרגות עם פודסט ושתי קורות פלדה. בתכנית 20 מדרגות ופדסט באורך 160 ס"מ -
פרויקט משרד תיירות
5.02.20משרד 90 מ"ר משרד תיירות תוכניות תקרה, רצפה, רגילות, פריסות, וכו -
מקרא חשמל לתכנית 2020
4.02.20מקרא חשמל לעיצוב פנים עם סימונים של חשמל ותקשורת -
דלת הזזה -בלוק
4.02.20דלת הזזה 280 כנף אחד. שרטוט בלוק. תכנית -
פינת ישיבה
3.02.20פינת ישיבה מתאים לעיצוב פנים ולאוכל -
ספה תלת מימד
2.02.20ספה מתעגלת תלת מימד מותאמת לחדרי מגורים גדולים במיוחד -
מטבח כולל שלוש חזיתות
2.02.20מטבח הכולל מבט על ושרטוט של שלוש חזיתות כולל קלפות מגירות וארונות -
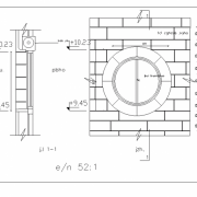
חלון עגול בקיר אבן
30.01.20חלון סובב ציר - כנף עגול בקיר אבן -
תוכנית מטבח
30.01.20תוכנית מטבח מקבילי עם שני מבטים: קיר ארונות גבוהים ואי המטבח. -
שולחנות אוכל
30.01.20שולחנות אוכל ממבט על בגדלים שונים וצורות שונות.
לא מצאת? פשוט חפש.
רשימות סימבולים / בלוקים על פי תגיות
המומחים של Saf
-
גילי לידסקי
אזור עבודה: רעננה - כפר סבאטלפון: 052-6158568
-
אורלי דבי מעצבת פנים
אזור עבודה: אזור השרוןטלפון: 0502737378
-
גילה אזולאי - צלמת חללים
אזור עבודה: כל הארץטלפון: 0544774218
-
מושי גיטליס - צלם אדריכלות
אזור עבודה: כל הארץטלפון: 052-4759925
-
סטודיו יעקב אבישי
אזור עבודה: כל הארץטלפון: 0542118681
חדשות אחרונות
-
מחפשים מקצוע חיוני בלב מערך ההנגשה?
4.11.25מורשה לנגישות מבנים, תשתיות וסביבה (מתו״ס): מקצוע חיוני בלב מערך ההנגשה בישראלצורך חברתי ורקע חוקיהנגשת מבנים במרחב הציב... -
חוקרים בטכניון זכו בפרס עיצוב יוקרתי
1.11.25חוקרים בטכניון זכו בפרס עיצוב יוקרתי על פיתוח טכנולוגיה חדשה להגנה על שתילים צעיריםהדוקטורנט עופר אסף ופרופ' אהרן שפרכר ... -
פרויקטי גמר מהחוג לארכ בביהס לעיצוב של אונ חיפה
26.07.25כשהקרקע נשמטת - האדריכלות מגיבהמהנגשה אזרחית מחודשת של קריית הלאום בירושלים, דרך תכנון מחדש של מרחב תעשייתי פחמי בחדרה, ...
תרום גם אתה!
הוסף קובץ לספרייה הפתוחה של אתר Saf. טען קובץ מקורי
הוסף קובץ לספרייה הפתוחה של אתר Saf. טען קובץ מקורי
עקוב אחר סימבולים / בלוקים חדשים באתר.
RSS









