פרטי בנין
בחלק זה של הספריה תוכלו למצוא פרטי בניין לעיון והורדה.
אם אתם מנסים לאתר פרט מסוים תוכלו לעשות זאת בעזרת מנוע החיפוש
או בעזרת החלוקה לתגיות המופיעה בהמשך.
פרטי בנין אחרונים
-
פרטי חיפוי חוץ לוחות אלומיניום
3.05.20פרטי חיפוי חוץ לוחות אלומיניום ואבן כל שהיא -
פרט תקרת גבס קובץ אוטוקד
3.05.20פרט תקרת גבס עם תאורה תלויה ופינה משתנה -
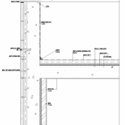
בידוד תרמי לקיר מחופה אבן
3.05.20בידוד תרמי לקיר מחופה אבן כול איטום, בידוד, תליית אבן ועוד -
פרט רעפים - פרטי בנין
3.05.20קובץ פרט לרעפים בבניה חדשה או תוספת בנייה בחיבור בטון ופרטים לכל החומרים -
דוגמא לסידור בלוקים תקרת צלעות
28.04.20דוגמא לסידור בלוקים לתקרת צלעות -
חלון הזזה עם צלון בקיר מטוייח
22.04.20פרט חתך של חלון הזזה בקיר מטוייח, כולל מסתור מטוייח לצלון נאסף וסף אבן -
תפר התפשטות
22.04.20תפר התשטות, פרט בניין, קנ"מ 1.10 -
מדרגות פנים
16.04.20מדרגות פנים יצוקות מבטון בחיפוי מדרך מעץ -
סף תחתון חלון בקיר מחופה hpl
31.03.20סף תחתון חלון קליל 9000 שלוש מסילות בקיר חיצוני מחופה hpl -
חיבור גג קל למסבכי פלדה
23.03.20פרט בין חיבור גג בטון לעמוד פלדה המחובר ע"י ברגים ויציקת בטון העמוד מתחבר לגג קל ע"י מסבכי פלדה , הגג מחופה אלומיניום -
פרט גינון על גג
3.03.20גינון על גג בטון 25 ס"מ , כולל שכבות איטום וניקוז -
פיתוח שטח של מגרש עם טפוגרפיה
1.03.20פיתוח שטח שעשיתי לטפוגרפיה עולה. עם בלוקים -
פרט חלון קליל 4500
23.02.20קובץ סף תחתון חיפוי אבן קליל 4500 -
פרט ממד
18.02.20תוכנית ממד כולל פרט חלוח ודלת, מתאים לפרוייקט גמר של תכן מבניל -
פרט איטום גג שטוח
12.02.20פרט איטום גג שטוח וקופינג אבן בקיר חיפוי אבן -
קו חיים (קו עיגון)
9.02.20פרט לקו עיגון ברכס גג עם פרטי אלמטים -
פרט נישה ובתוכה קופסת זכוכית
9.02.20פרט נישה ובתוכה קופסת זכוכית שקועה -
חתך אופקי במדרגת קוריאן
4.02.20מדגות קוריאן היושבות על שדרת פרופיל RHS באמצעות ריתוך. -
פרט מאחז יד
30.01.20פרט מאחז יד קצה עליון, מאחז יד מחובר למעקה מזכוכית -
פרטי חלון בקיר בלוק מחופה אבן
30.01.20פרטי חלון בקיר בלוק מחופה אבן ,פרט חלון מונובלוק אופקי ואנכי
לא מצאת? פשוט חפש.
רשימות פרטי בנין על פי תגיות
המומחים של Saf
-
שני שטלריד
אזור עבודה: כל הארץטלפון: 0542057676
-
לייה סלה
אזור עבודה: כל הארץטלפון: 0523130009
-
קריסטל גרפיקס הדמיות בתלת מימד
אזור עבודה: כל הארץטלפון: 0545402128
-
מושי גיטליס - צלם אדריכלות
אזור עבודה: כל הארץטלפון: 052-4759925
-
בית הספר הארצי להנדסאים
אזור עבודה: הגלילטלפון: 04-8297115
חדשות אחרונות
-
מחפשים מקצוע חיוני בלב מערך ההנגשה?
4.11.25מורשה לנגישות מבנים, תשתיות וסביבה (מתו״ס): מקצוע חיוני בלב מערך ההנגשה בישראלצורך חברתי ורקע חוקיהנגשת מבנים במרחב הציב... -
חוקרים בטכניון זכו בפרס עיצוב יוקרתי
1.11.25חוקרים בטכניון זכו בפרס עיצוב יוקרתי על פיתוח טכנולוגיה חדשה להגנה על שתילים צעיריםהדוקטורנט עופר אסף ופרופ' אהרן שפרכר ... -
פרויקטי גמר מהחוג לארכ בביהס לעיצוב של אונ חיפה
26.07.25כשהקרקע נשמטת - האדריכלות מגיבהמהנגשה אזרחית מחודשת של קריית הלאום בירושלים, דרך תכנון מחדש של מרחב תעשייתי פחמי בחדרה, ...
תרום גם אתה!
הוסף קובץ לספרייה הפתוחה של אתר Saf. טען קובץ מקורי
הוסף קובץ לספרייה הפתוחה של אתר Saf. טען קובץ מקורי
עקוב אחר פרטי בנין חדשים באתר.
RSS







