פרטי בנין
בחלק זה של הספריה תוכלו למצוא פרטי בניין לעיון והורדה.
אם אתם מנסים לאתר פרט מסוים תוכלו לעשות זאת בעזרת מנוע החיפוש
או בעזרת החלוקה לתגיות המופיעה בהמשך.
פרטי בנין אחרונים
-
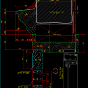
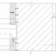
פרט מפגש חלון עם קיר
28.01.20פרט מפגש קיר שחוצה חלון סטריפ כדי ליצור חזית אחידה.הקיר מגיע כמעט עד החלון ומחופה בפרופיל אלומינים שמחבר בין הזגוגית לקיר -
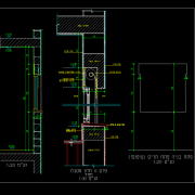
חלון הזזה עם צלון בקיר מטוייח
23.01.20פרט חלון הזזה עם צלון וסף אבן בקיר מטוייח. -
פרט מסתור תריס רפפות חשמלי
21.01.20פרט בניה למסתור לארגז תריס רפפות נאסף חשמלי במקרה שלא צריך פתח שירות לטיפול במנוע. -
מפגש תקרת זיז מבטון וקורת חוץ
21.01.20הפרט מתאר תקרת בטון זיזית עם ניקוז אסתטי דרך תעלת פח מגולוון, במפגש עם קורת בטון בחיפוי אבן העולה במעט מעל הזיז ומכסה את החיבור, ואת הגימור בתחתית הקורה. -
פרט מאחז יד שקוע בקיר
18.01.20פרט מאחז יד שקוע בקיר, עשוי מדיקט עץ, עם תאורה נסתרת. הקיר מחופה אבן. -
איטום חדר רחצה
16.01.20פרט איטום חדר רחצה פרט איטום מקלחת -
פרטי בנין- פרויקט גמר
15.01.20פרטי בנין לשנה 3 לפרויקט גמר להגשה למורים -
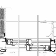
פרט חתך קיר חיפוי אלוקובונד
14.01.20פרט חתך חיפוי אלוקובונד במפגש עם קיר ויטרינה ורפפה -
מדרגות בניין בן 2 קומות
13.01.20תכנית מדרגות בניין בן 2 קומות בק.מ 1:20 -
פרט מעקה זכוכית שקוע
7.01.20מעקה זכוכית שקוע בבטון עם מאחז יד ניקל -
חלון מטבח עם תריס גלילה
31.12.19חלון מטבח עם תריס גלילה כולל פתח בניה ופתח תריס טיפוסי -
חלון אלומניום
31.12.19פרט של חלון אלומניום זיוגוג בפוליקרבונט שקוף ובעובי ע"פ הנחיות הג"א -
מדרגות חוץ
31.12.19מדרגות חוץ 5 מדרגות בטון מוחלק בגובה 17 ס"מ -
פרט חלון אנגלי
31.12.19פרט חלון אנגלי עם סבכת ברזל ופרט חלון אנגלי עם מעקה -
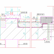
פרט יציאה למרפסת ומעקה
26.12.19פרט יציאה למרפסת ומעקה איטום גג וחומרים -
פרט מדרגת בטון
23.12.19מדרגה מבטון עם חיפוי עץ דקורטיבי ומנורת לד הנמצאת במדרגת בטון -
חיבור מעקה זכוכית לבטון
22.12.19חיבור מעקה זכוכית לבטון ופרט תקרה חופשי -
פרטי מדרגות
19.12.19פרטי מדרגות בטון עם סוג ריצוף והסבר במילים -
פרט משקוף עליון לחלון ותריס עץ
17.12.19פרט משקוף עליון לחלון בקיר אבן לשימור. הפרט כולל חלון אלומיניום פנימי ותריס רפפת עץ חיצוני. -
פרט אבן בקיר חוץ
17.12.19פרט אבן בקיר חוץ מ 3 מבטים שונים
לא מצאת? פשוט חפש.
רשימות פרטי בנין על פי תגיות
המומחים של Saf
-
דנה ליר אלעני ליר אדריכלים
אזור עבודה: כל הארץטלפון: 036817601
-
סטודיו יעקב אבישי
אזור עבודה: כל הארץטלפון: 0542118681
-
משרד הנדסי - נוימן נווה שגיא
אזור עבודה: כל הארץטלפון: 0525255615
-
סאן דיזיין פרויקטים
אזור עבודה: כל הארץטלפון: 0559139292
-
סיגל שרווין
אזור עבודה: כל הארץטלפון: 0542622088
חדשות אחרונות
-
מחפשים מקצוע חיוני בלב מערך ההנגשה?
4.11.25מורשה לנגישות מבנים, תשתיות וסביבה (מתו״ס): מקצוע חיוני בלב מערך ההנגשה בישראלצורך חברתי ורקע חוקיהנגשת מבנים במרחב הציב... -
חוקרים בטכניון זכו בפרס עיצוב יוקרתי
1.11.25חוקרים בטכניון זכו בפרס עיצוב יוקרתי על פיתוח טכנולוגיה חדשה להגנה על שתילים צעיריםהדוקטורנט עופר אסף ופרופ' אהרן שפרכר ... -
פרויקטי גמר מהחוג לארכ בביהס לעיצוב של אונ חיפה
26.07.25כשהקרקע נשמטת - האדריכלות מגיבהמהנגשה אזרחית מחודשת של קריית הלאום בירושלים, דרך תכנון מחדש של מרחב תעשייתי פחמי בחדרה, ...
תרום גם אתה!
הוסף קובץ לספרייה הפתוחה של אתר Saf. טען קובץ מקורי
הוסף קובץ לספרייה הפתוחה של אתר Saf. טען קובץ מקורי
עקוב אחר פרטי בנין חדשים באתר.
RSS







