סימבולים / בלוקים
חלק זה של הספריה מרכז עבור אדריכלים בלוקים וסימבולים לתוכנת אוטוקאד ותוכנות שרטוט דומות. אם ברצונכם
למצוא בלוק להורדה, תוכלו לאתר אותו דרך מנוע החיפוש של האתר או על פי
התגיות.
סימבולים / בלוקים אחרונים
-
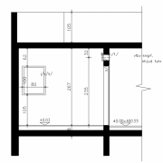
לוקרים חזית וצד
20.09.19בלוק אוטוקד של יחידת לוקרים במבט חזיתי ומהצד -
אריח ריצוף
19.09.19אריח בטון מעוטר מבטון צבע טורקיז -
תוכנית תאורה וחשמל
19.09.19בלוקים לתאורה וחשמל כולל סניטריה וריהוט -
אריחי קרמיקה/בטון מצוייר
19.09.19אריחים מצויירים -דוגמאות שונות -
יין , בקבוק יין בדלי עם קרח
19.09.19יין בתוך דלי עם קוביות קרח , בקבוקי יין , בקבוק יין על מעמד עם פקק שהם -
חזית מאבן
18.09.19חזית מאבן כללת חלונות ואבן פינה למבנה קיים כלל פרטי חלונות ואבן טובזה -
סימבול של פסנתר כנף
18.09.19מבט על של כלי נגינה. שני גדלים של פסנתר כנף ואורגן -
בלוק תכנית חניה.
18.09.19בלוק של חניה עם בלוק מכונית ומספור החניה. -
פריסה-אזור קבלה
16.09.19פריסת עיצוב פנים-אזור כניסה וקבלה שולחן קבלה שמתחבר לספסל ישיבה ומה שמפריד בינהם זה קיר זכוכית -
פרויקט גמר
15.09.19בלוקים ריהוט, מידות , חזזיתות וחתכים לפרויקט גמר. -
דלפק נגיש
15.09.19לפי התקנות תכנון ציבורי מחויב לאפשר נגישות לקבלת קהל נכה\כסא גלגלים, בין היתר קיימת הדרישה גם בעסקי המזון: בתי קפה, מסעדה וכו' לדלפק מכירה נגיש במידות עומק מינימום 40 סמ (כניסה לכסא גלגלים), גובה 80 סמ, הקובץ מציג פרט\חתך אופייני לדלפק נגיש המשמש גם כדלתית כניסה לעובד, הדלפק עשוי שלד פלדה ציפוי פח צבוע, משטח שיש, צירי בריח לפתיחת הדלתית, למניעת שקיעת הדלתית ולהזזה קלה בפתיחה, הרכבת גלגל סיליקון. -
בקבוקים - חזית
15.09.19בקבוקים בחזית. מתאים לחתך במטבח. כל מיני סוגים -
15 סוגי דלתות
15.09.19כל מיני דלתות לחזיתות וחתכים דלתות מהממות והורסות יכול להתאים להמון סוגי שרטוטים ממש נוח לעבוד איתם -
תאורה מפעל קוסמטיקה
15.09.19פיזור גופי תאורה בעזרת תוכנת רלוקס -
אדנית ספסל
14.09.19אדנית ספסל בנוי מבטון/ חומר אחר הכולל עץ ואדמה -
מיטה זוגית 140
12.09.19מיטה זוגית בגודל 140 על 200 סנטימטרים -
מנורה עליונה לתקרה שנת 2019
12.09.19מנורה עליונה לתקרה שימושי לכל מטרה קובץ סוג אןטוקד שנת 2019 -
ציור של מנדלה
12.09.19ציור של מנדלה מעיגולים ניתן להשתמש במשראביות -
ממ"ד עם מערכת סינון אוויר
12.09.19בלוק מוכן של ממ"ד ניתן להשתמש כמו שהוא ולשתול בתוכניות -
מזגן - מבט על
11.09.19מבט על של יח' מיזוג.שרטוט בשכבה 0. כולל חיצי זרימת אוויר
לא מצאת? פשוט חפש.
רשימות סימבולים / בלוקים על פי תגיות
המומחים של Saf
-
משרד הנדסי - נוימן נווה שגיא
אזור עבודה: כל הארץטלפון: 0525255615
-
סיגל שרווין
אזור עבודה: כל הארץטלפון: 0542622088
-
הדר כהן - שירותי שרטוט למעצבים
אזור עבודה: כל הארץטלפון: 0522454389
-
בית הספר הארצי להנדסאים
אזור עבודה: הגלילטלפון: 04-8297115
-
מדידות פנים - My Plan
אזור עבודה: כל הארץטלפון: 0528224788
חדשות אחרונות
-
מחפשים מקצוע חיוני בלב מערך ההנגשה?
4.11.25מורשה לנגישות מבנים, תשתיות וסביבה (מתו״ס): מקצוע חיוני בלב מערך ההנגשה בישראלצורך חברתי ורקע חוקיהנגשת מבנים במרחב הציב... -
חוקרים בטכניון זכו בפרס עיצוב יוקרתי
1.11.25חוקרים בטכניון זכו בפרס עיצוב יוקרתי על פיתוח טכנולוגיה חדשה להגנה על שתילים צעיריםהדוקטורנט עופר אסף ופרופ' אהרן שפרכר ... -
פרויקטי גמר מהחוג לארכ בביהס לעיצוב של אונ חיפה
26.07.25כשהקרקע נשמטת - האדריכלות מגיבהמהנגשה אזרחית מחודשת של קריית הלאום בירושלים, דרך תכנון מחדש של מרחב תעשייתי פחמי בחדרה, ...
תרום גם אתה!
הוסף קובץ לספרייה הפתוחה של אתר Saf. טען קובץ מקורי
הוסף קובץ לספרייה הפתוחה של אתר Saf. טען קובץ מקורי
עקוב אחר סימבולים / בלוקים חדשים באתר.
RSS









