סימבולים / בלוקים
חלק זה של הספריה מרכז עבור אדריכלים בלוקים וסימבולים לתוכנת אוטוקאד ותוכנות שרטוט דומות. אם ברצונכם
למצוא בלוק להורדה, תוכלו לאתר אותו דרך מנוע החיפוש של האתר או על פי
התגיות.
סימבולים / בלוקים אחרונים
-
משקל מונח לקופה
11.07.19משקל מונח על דלפק הקופה בחנויות. ניתן לשנות את הגדלים ע"י הפקודה scale או ע"י כניסה לבלוק עצמו. -
חלון ודלת דינאמי
11.07.19חלון ודלת ניתנים לשינוי מיידי שינוי מידה ואורך של החלון ושל הדלת -
נדנדת חצר
11.07.19נדנדת עץ לחצר או למרפסת בציפוי מגן מים -
פריסת מטבח
10.07.19סקיצה של מבט על ופריסה של מטבח בצורת מ. -
פרט מדרגה ראשונה (מדרגת שיש)
10.07.19פרט מדרגה ראשונה - המדרגה הינה מדרגה עם חיפוי שיש. ניתן להשתמש בפרט כפרט לגליון מדרגות - מדרגה ראשונה -
פרט חיבור חלון אלומניום עם קיר
10.07.19פרט חיבור חלון אלומניום עם קיר -
PROYECTO SUSHI BAR
10.07.19שרטוט פרויקט מסעדה סושי בר, תכנית חשמל -
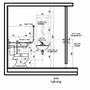
שרותי נכים
10.07.19פרט שירותי נכים כולל תכנית. חתך מפורט, נגישות לנכים. -
תכנית מטבח
10.07.19קובץ DWG עם תוכנית מטבל לבית פרטי דו קומתי קנ"מ 1:20 -
דלתות שרטות אוטוקד
10.07.19קובץ יעיל ושימושי לשרטות, ישנם כמה סוגים וגדלים של דלתות מומלץ**** -
כל הבלוקים הסניטרים
10.07.19בלוקים סניטרים, שירותים מקלחון אסלה כיורים ועוד -
כלי נגינה
10.07.19כלי נגינה הכולל בתוכו חליל, אורגן, פסנתר, גיטרה, תופים, כיסא פסנתר ועוד... -
בלוקים של צמחיה רב שנתית
10.07.19צמחיה רב שנתית, עצי נוי, עצי הדר,עצים עם פריחה אדומה, שיחים. -
אסלות ומקלחונים
10.07.19מבחר אסלות מקלחונים ואמבטיות במבטים שונים : מבט על, מבט צד ומבט חזית. -
בלוקים ארונות בגדים
10.07.19בלוקים אוטוקטד של ארונות וקולבי ביגוד -
ארונות הזזה חזית
10.07.19ארונות הזזה - חזית מקורית פסי ניתוק -
מסוע-אינטרלוק-20-45
10.07.19מסוע למפעלי תעשיה, מסוע-אינטרלוק-20-45 -
שולחן עבודה במשרד
10.07.19שולחן עבודה ל4 עובדים באופן ספייס -
מעלית - בלוק מעלית רגילה
9.07.19מעלית- בלוק מעלית רגילה - קנ"מ 100 : 1 -
קובץ אוטוקאד מדרגות בתכנית
9.07.19קובץ אוטוקאד של מדרגות מסוגים שונים בתכניות ובחתכים , כולל מפלסים
לא מצאת? פשוט חפש.
רשימות סימבולים / בלוקים על פי תגיות
המומחים של Saf
-
סיגל שרווין
אזור עבודה: כל הארץטלפון: 0542622088
-
משרד הנדסי - נוימן נווה שגיא
אזור עבודה: כל הארץטלפון: 0525255615
-
גילה אזולאי - צלמת חללים
אזור עבודה: כל הארץטלפון: 0544774218
-
גילי לידסקי
אזור עבודה: רעננה - כפר סבאטלפון: 052-6158568
-
מדידות פנים - My Plan
אזור עבודה: כל הארץטלפון: 0528224788
חדשות אחרונות
-
מחפשים מקצוע חיוני בלב מערך ההנגשה?
4.11.25מורשה לנגישות מבנים, תשתיות וסביבה (מתו״ס): מקצוע חיוני בלב מערך ההנגשה בישראלצורך חברתי ורקע חוקיהנגשת מבנים במרחב הציב... -
חוקרים בטכניון זכו בפרס עיצוב יוקרתי
1.11.25חוקרים בטכניון זכו בפרס עיצוב יוקרתי על פיתוח טכנולוגיה חדשה להגנה על שתילים צעיריםהדוקטורנט עופר אסף ופרופ' אהרן שפרכר ... -
פרויקטי גמר מהחוג לארכ בביהס לעיצוב של אונ חיפה
26.07.25כשהקרקע נשמטת - האדריכלות מגיבהמהנגשה אזרחית מחודשת של קריית הלאום בירושלים, דרך תכנון מחדש של מרחב תעשייתי פחמי בחדרה, ...
תרום גם אתה!
הוסף קובץ לספרייה הפתוחה של אתר Saf. טען קובץ מקורי
הוסף קובץ לספרייה הפתוחה של אתר Saf. טען קובץ מקורי
עקוב אחר סימבולים / בלוקים חדשים באתר.
RSS









