סימבולים / בלוקים
חלק זה של הספריה מרכז עבור אדריכלים בלוקים וסימבולים לתוכנת אוטוקאד ותוכנות שרטוט דומות. אם ברצונכם
למצוא בלוק להורדה, תוכלו לאתר אותו דרך מנוע החיפוש של האתר או על פי
התגיות.
סימבולים / בלוקים אחרונים
-
אנשים - בלוקים
9.07.19מגוון אפשרויות לדמויות - בלוקים -
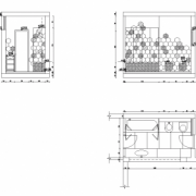
בלוקים- שירותים ומקלחת
9.07.19קובץ בלוקים של שירותים ומקלחות בעיצובים שונים -
דלת פיבוט
9.07.19דלת פיבוט עם משקוף אפס הנחשבת לדלת מיוחדת ויוקרתית ביותר, עקב שיטת הציר שלה המאפשר לקבל דלת כנף אחת במידות רוחב עד 2 מ’ וגובה עד 3 מ’, המנגנון אינו נראה וניסתר לחלוטין, בנוסף למבחר הרב של העיצובים הקיימים. -
מטבחים- סימבול דו מימד
9.07.19מטבחים כיורים דו מימד בלוקים122 -
קובץ המכיל פרט של מקרר במבט על
9.07.19ניתן למצוא בקובץ זה פרט של מקרר עם כנף אחת במבט על במידות המקרר מתאים לכל יחידת מטבח אופציונלית. המקרר מכיל דלת מקרר ואת המקרר עצמו מקווה שעזרתי בהצלחה רבה -
עצים מבט
8.07.19מגוון בלוקים של עצים לחתך או מבט. -
בלוקים של עצים מופשטים
8.07.19קובץ של עצים בחתכים ובתכניות שונות. עצים מופשטים. ליצירת גרפיקה יפה ועדינה על גבול היפנית. -
ריהוט סניטרי 1:50
8.07.19ריהוט סניטרי כגון אסלות אמבטיה כיורים בתוכנית ובחתך בקנה מידה 1:50 -
ספרים במבט לספרייה DWG לעיצוב
8.07.19ספרים בכל מיני צורות לעיצוב פריסות -
צמחית במבוק
8.07.19חזית ותוכנית של צמח הבמבוק באיכות מעולה -
תוספת על גג מבנה
8.07.19שרטוטים של תוספת בניה על גג מבנה קיים -
קונסולה-חזית
7.07.19שולחן איפור, קונסולה. מתאים לפריסות או חתכי פנים -
תכנית אמבטיה
7.07.19תכנית לחדר אמבטיה כולל פריסות של הקירות -
שולחן לחדר ישיבות - 20 כיסאות
7.07.19שולחן לחדר ישיבות גדול במשרדים - 20 כיסאות -
בלוקים של מיטות
7.07.19סימבולים, בלוקים לאוטוקאד מיטות, מיטות יחיד, מיטות זוגיות, מיטות יחיד מבט על, מיטות זוגיות במבט על, מיטות יחיד בחתך, מיטות זוגיות בחתך, -
בלוקים של עצים
7.07.19בלוקים של עצים, צמחיה ושיחים מבט על וחזית....... -
תוכנית חשמל
7.07.19תוכנית חשמל משורטטת- שינויי דיירים -
בלוקים של כיורים
7.07.19אחת עשרה בלוקים שונים של כיורים בלוקים לאוטוקד -
כלי רחצה
7.07.19כלי אקססוריז,סניטרים,מתלה מגבות ,מגבות מגולגלות וכו' לעיצוב פריסות למקלחת -
מחשב נייד
7.07.19בקובץ הזה ניתן למצוא מחשב נייד דגם חדש לשימוש למשרדי הייטק ולבתים.
לא מצאת? פשוט חפש.
רשימות סימבולים / בלוקים על פי תגיות
המומחים של Saf
-
סטודיו יעקב אבישי
אזור עבודה: כל הארץטלפון: 0542118681
-
גילי לידסקי
אזור עבודה: רעננה - כפר סבאטלפון: 052-6158568
-
הדר כהן - שירותי שרטוט למעצבים
אזור עבודה: כל הארץטלפון: 0522454389
-
עפרה יעיש תכנון ואדריכלות פנים
אזור עבודה: כל הארץטלפון: 0503884846
-
קריסטל גרפיקס הדמיות בתלת מימד
אזור עבודה: כל הארץטלפון: 0545402128
חדשות אחרונות
-
מחפשים מקצוע חיוני בלב מערך ההנגשה?
4.11.25מורשה לנגישות מבנים, תשתיות וסביבה (מתו״ס): מקצוע חיוני בלב מערך ההנגשה בישראלצורך חברתי ורקע חוקיהנגשת מבנים במרחב הציב... -
חוקרים בטכניון זכו בפרס עיצוב יוקרתי
1.11.25חוקרים בטכניון זכו בפרס עיצוב יוקרתי על פיתוח טכנולוגיה חדשה להגנה על שתילים צעיריםהדוקטורנט עופר אסף ופרופ' אהרן שפרכר ... -
פרויקטי גמר מהחוג לארכ בביהס לעיצוב של אונ חיפה
26.07.25כשהקרקע נשמטת - האדריכלות מגיבהמהנגשה אזרחית מחודשת של קריית הלאום בירושלים, דרך תכנון מחדש של מרחב תעשייתי פחמי בחדרה, ...
תרום גם אתה!
הוסף קובץ לספרייה הפתוחה של אתר Saf. טען קובץ מקורי
הוסף קובץ לספרייה הפתוחה של אתר Saf. טען קובץ מקורי
עקוב אחר סימבולים / בלוקים חדשים באתר.
RSS









