סימבולים / בלוקים
חלק זה של הספריה מרכז עבור אדריכלים בלוקים וסימבולים לתוכנת אוטוקאד ותוכנות שרטוט דומות. אם ברצונכם
למצוא בלוק להורדה, תוכלו לאתר אותו דרך מנוע החיפוש של האתר או על פי
התגיות.
סימבולים / בלוקים אחרונים
-
רהיטים למשרד
2.08.20שולחנות למשרד שתוכננו עם עם פינות נעוגלות או בכלל מעוגלים ולא מרובעים -
כיור כפול ברז קיר
2.08.20כיור כפול בהתקנה שטוחה עם שני ברזי קיר -
תוכנית מטבח 1-25
2.08.20תוכנית, חתך ומבטים למטבח בקנה מידה 1:25 -
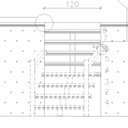
פרט מרפסת
30.07.20פרט מרפסת זיזי עם איטומיםושיפועים ומעקה- כולל פרט מעקה -
דוד שמש וקולטים איזומטריה
29.07.20קולטי שמש ודוד באיזומטריה. ניתן לשנות על פי הצורך -
רשת פח אלומיניום
29.07.20רשת פח מעויינת מאלומיניום עובי משתנה -
אסלה עם מיכל הדחה גבוה
29.07.20בלוק של אסלה עם מיכל הדחה גבוה. מבט צד ופרונטלי -
בלוקים לאוטוקד - עיצוב חנות
29.07.20תכנון חנות במתחם שרונה, תל אביב באוטוקאד, 2 מפלסים בעיצוב מוקפד של חומרים מהטבע. -
חזיתות אירופאיות קיימות
29.07.20חזיתות בנינים עתיקים מאירופה קיימים לקוחים משרטוטים קיימים -
גדר עץ לחצר מבנה, עם דמויות
28.07.20גדר עץ לחצר חיצונית , מתאימה לכל מבנה, פרטי וציבורי, עם דמויות גבר ואישה ועץ ענק -
ספת ר עם כריות
28.07.20תכנית ספת ר עם שזלונג עם כריות מעוצבות ומתאימה לשלושה אנשים. -
בלוקים ריהוט ומוצרי חשמל
28.07.20מקבץ ריהוט ,מיטות,שולחנות ,פרטי חשמל, טלוויזיה, ספות ,פינת ישיבה ,כיריים ,מקרר ,מכונת כביסה ושולחן תלמיד. -
תאורת בניין בקופינג פח
28.07.20תאורת בניין בקופינג פח הארת המבנה כלפי מטה מקומה עליונה ע"י תאורה נסתרת בקופינג מפח מכופף וצבוע -
כסא בר מהצד
28.07.20כסא בר יפה גבוה שזה מבט שלו מהצד כסא מתאים למסעדה או לבר -
בלוק לוקרים
28.07.20בלוק לוקרים ממתכת, שלוש קומות, מידות 40X40 ס"מ גובה 60 ס"מ -
תכנית קרקע כניסת משרדים
26.07.20תכנית קרקע כניסת משרדים אופן ספייס מדידה נופית חרמון -
שרטוט סוגי מגבות
26.07.20שרטוט סוגי מגבות מסוגים שונים ,קטן, גדול, וכו -
כיסא נוח
26.07.20בן אדם יושב על כיסא נוח עם שימשיה מתאים למרפסות -
פרטי בפרט תעלה תחתונה ופרטניין
26.07.20פרט תעלה תחתונה ופרט רכס בגג רעפים -
תוכנית חלוקה
24.07.20תכנון לוח לתאורה+חשמל הזנה למפסק ראשי וחלוקה למאז"ים
לא מצאת? פשוט חפש.
רשימות סימבולים / בלוקים על פי תגיות
המומחים של Saf
-
אורלי דבי מעצבת פנים
אזור עבודה: אזור השרוןטלפון: 0502737378
-
ליאת רוזנברג
אזור עבודה: כל הארץטלפון: 0548084102
-
משרד הנדסי - נוימן נווה שגיא
אזור עבודה: כל הארץטלפון: 0525255615
-
הדמיות אדריכליות | MHVIZUAL
אזור עבודה: כל הארץטלפון: 0543020670
-
סיגל שרווין
אזור עבודה: כל הארץטלפון: 0542622088
חדשות אחרונות
-
מחפשים מקצוע חיוני בלב מערך ההנגשה?
4.11.25מורשה לנגישות מבנים, תשתיות וסביבה (מתו״ס): מקצוע חיוני בלב מערך ההנגשה בישראלצורך חברתי ורקע חוקיהנגשת מבנים במרחב הציב... -
חוקרים בטכניון זכו בפרס עיצוב יוקרתי
1.11.25חוקרים בטכניון זכו בפרס עיצוב יוקרתי על פיתוח טכנולוגיה חדשה להגנה על שתילים צעיריםהדוקטורנט עופר אסף ופרופ' אהרן שפרכר ... -
פרויקטי גמר מהחוג לארכ בביהס לעיצוב של אונ חיפה
26.07.25כשהקרקע נשמטת - האדריכלות מגיבהמהנגשה אזרחית מחודשת של קריית הלאום בירושלים, דרך תכנון מחדש של מרחב תעשייתי פחמי בחדרה, ...
תרום גם אתה!
הוסף קובץ לספרייה הפתוחה של אתר Saf. טען קובץ מקורי
הוסף קובץ לספרייה הפתוחה של אתר Saf. טען קובץ מקורי
עקוב אחר סימבולים / בלוקים חדשים באתר.
RSS









