סימבולים / בלוקים
חלק זה של הספריה מרכז עבור אדריכלים בלוקים וסימבולים לתוכנת אוטוקאד ותוכנות שרטוט דומות. אם ברצונכם
למצוא בלוק להורדה, תוכלו לאתר אותו דרך מנוע החיפוש של האתר או על פי
התגיות.
סימבולים / בלוקים אחרונים
-
פמוט סימבול תלת מימד
15.07.20פמוט שבת מתאים ככלי כסף לשרטוט וויטרינה -
עיטור מעוצב
15.07.20עיטורים מעוצבים לשימוש בעיצוב שלכם -
חנוכיה לתכנון סלון
15.07.20שרטוט חנוכיה לתכנון ספריה ווטרינה עבור הסלון -
בלוק דינאמי חלון
15.07.20בלוקי דינמי של חלון לתוכנית, ניתן למתוח אותו ולהקטין אותו בהתאם לתוכנית שלכם ללא צורך בשבירת הבלוק עי הפקודה explode -
חבלי כביסה
15.07.20בלוק למסתור כביסה - חבלים וגלגלות- מידת אורך 220 ס"מ -
שולחן אוכל לארבעה סועדים
14.07.20שולחן אוכל ל4 סועדים עעשוי עץ + ארבע כיסאות -
airplanes
13.07.20בלוקי מטוסים - סוגים למיניהם - בלוקים - מטוסים - -
דלת עבור כניסה
13.07.20דלת עבור כניסה לחדר שירותים, הדלת כבר מצורפת לבלוק -
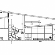
חתך מבנה ציבור בית ספר
13.07.20בית ספר לאומניות הבמה עם טופוגרפיה מסובכת -
מסנן אוויר לחדר מ"מ
13.07.20מסנן אוויר לחדר מ"מ, ממ"מ , ממ"ד. בלוק של מסנן אוויר -
סימני חשמל
13.07.204 סימני חשמל שקע חשמל בודד שקע חשמל כפול שקע חשמל תקרה מפסק חשמל רגיל -
משרבייה עיגולים
13.07.20משרבייה לחיתוך עץ או ברזל דוגמאות עיגולים -
אקוריום
12.07.20אקוריום עם ארון מובנה מטר וחצי אורך.. 2ארונות לציוד ומגירה לאבזור קטן. -
בלוק חץ צפון
12.07.20בלוק של חץ צפון קובץ אוטוקד בפורמט dwg -
תכנית חשמל מלון
12.07.20תכנית חשמל עבור בית מלון פרוקיט גמר -
כורסא דגם א
12.07.20כורסא שיושבים עלייה כורסא סופר נוח -
פרט חיבור מעקה זכוכית לבטון
12.07.20פרט בניין של מעקה זכוכית מחובר לבטון -
פרט בניין של קיר אבן
11.07.20פרט בניין של קיר אבן בשיטה הרטובה עם חלון -
פרט מדרגות בטון ועץ
11.07.20פרט מדרגות - מדרגות בטון ועץ אלון -
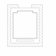
מעלית- סימבול תכנית
9.07.20מעלית בתוך פיר, סימבול לשימוש בתכניות למשרדים ובנינים רבי קומות, מלונות וכדו'
לא מצאת? פשוט חפש.
רשימות סימבולים / בלוקים על פי תגיות
המומחים של Saf
-
ליאת רוזנברג
אזור עבודה: כל הארץטלפון: 0548084102
-
הדמיות אדריכליות | MHVIZUAL
אזור עבודה: כל הארץטלפון: 0543020670
-
בית הספר הארצי להנדסאים
אזור עבודה: הגלילטלפון: 04-8297115
-
לייה סלה
אזור עבודה: כל הארץטלפון: 0523130009
-
סאן דיזיין פרויקטים
אזור עבודה: כל הארץטלפון: 0559139292
חדשות אחרונות
-
מחפשים מקצוע חיוני בלב מערך ההנגשה?
4.11.25מורשה לנגישות מבנים, תשתיות וסביבה (מתו״ס): מקצוע חיוני בלב מערך ההנגשה בישראלצורך חברתי ורקע חוקיהנגשת מבנים במרחב הציב... -
חוקרים בטכניון זכו בפרס עיצוב יוקרתי
1.11.25חוקרים בטכניון זכו בפרס עיצוב יוקרתי על פיתוח טכנולוגיה חדשה להגנה על שתילים צעיריםהדוקטורנט עופר אסף ופרופ' אהרן שפרכר ... -
פרויקטי גמר מהחוג לארכ בביהס לעיצוב של אונ חיפה
26.07.25כשהקרקע נשמטת - האדריכלות מגיבהמהנגשה אזרחית מחודשת של קריית הלאום בירושלים, דרך תכנון מחדש של מרחב תעשייתי פחמי בחדרה, ...
תרום גם אתה!
הוסף קובץ לספרייה הפתוחה של אתר Saf. טען קובץ מקורי
הוסף קובץ לספרייה הפתוחה של אתר Saf. טען קובץ מקורי
עקוב אחר סימבולים / בלוקים חדשים באתר.
RSS









