חיפוש - אדריכלות , אלומיניום |1|
לא מצאת? פשוט חפש.
-
סינר גבס ואריחי אלומיניום
1.02.22פרט סינר גבס עם אריחי אלומיניום -
רצף חלונות אלומיניום - חתך אנכי
16.10.07פרטי הרכבה עקרוניים לרצף חלונות אלומיניום. 1. סף עליון אל משקוף עיוור ואיטום לוח שיש חיצוני. 2. סף תחתון עם אדן מאבן נסורה, מדרגה למשקוף עיוור ואף מים. פרט זה הינו המשלים ל פרטי חתך אופקי -
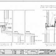
רצף חלונות אלומיניום - חתך אופקי
16.10.07פרטי הרכבה עקרוניים לרצף חלונות אלומיניום. 1. פרופיל פלדה לחיזוק בין שני חלונות. 2. פרופיל קצה אל משקוף עיוור מפלדה וסיום אל טיח או שיש בצד החיצוני. פרט זה הינו המשלים ל פרטי חתך אנכי -
אדן חלון עשוי אבן לחלון אלומיניום
15.10.07חתך אנכי בחלון אלומיניום בקיר מחופה אבן מצידו החיצוני. הפרט מראה את הסף העליון, אף המים בטיח, חלון האלומיניום עם המשקוף העיוור וההלבשות הפנימיות. סף החלון החיצוני עשוי אבן אך אינו נכנס אל פנים המבנה אלא נסגר אל יציקת בטון. מגן קיר מעץ אלון נמצא בתחתית החלון בצידו הפנימי. -
יקב בוטיק
23.06.13יקב בוטיק הכולל מרכז מבקרים. 500 מ"ר בנוי בשלושה מפלסים. הכניסה ליקב מהמפלס האמצעי, שם גם נמצאת החנות, אזור הייצור נמצא במפלס התחתון, והסיור למבקרים נערך במפלס העליון הצופה על כל היקב. המבנה מתוכנן בבניה קלה ברובו- גמר חיצוני פח אלומיניום וגמר פנימי עץ. בתמונות שלפניכם אפשר להתרשם מהחזיתות של המבנה ומחדר הטעימות של היקב. -
אדן חלון וסף תחתון מאלומיניום
16.10.07חתך אנכי בסף חלון תחתון עם אדן המחופה בלוח אלומיניום. הפרט מראה את חגורת הבטון התחתונה, משקוף עיוור וסף אלומיניון מכופף הנתפס אל לוח פח. האיטום נעשה על ידי הגיאומטריה של הלוחות ומילוי סיליקון. -
סטודיו לעיצוב 6B בתל אביב
12.01.13חיפוי קיר פנים דקורטיבי. תכנון ועיצוב ע"י אדריכלית פנים דלית לילינטל. החיפוי עשוי מפסי אלומיניום גליים בעובי 6 מ"מ. הפסים נחתכו במכונת חיתוך לייזר, על כל פס "נצרב" מספר סידרוי על מנת למקם אותו במקומו הנכון במהלך ההתקנה. לאחר החיתוך הפסים נצבעו בצביעה אלקטרוסטטית בתנור. ה"גלים" הותקנו בשתי שכבות לא מקבילות ליצירת אפקט תלת מימדי. -
פרט דלת הזזה
1.09.16רצפת בטון קונסטרוקטיבי עליו מונח חול, טיט, ואריכי גרניט פורצלן (כלפי פנים וחוץ למבנה) בטון רזה ברדיוס X עליו מונח זוויתן פלדה, מסטיק איטום וסף פליז. עליו מולבש פרופיל אלומיניום ודלת הזזה -
תכנון חיפוי ופרטי ביצוע למבנה
13.07.23תכנון חיפוי מעטפת המבנה. ייעוץ, תכנון, פיקוח, ניהול עובדים באתר ואישור תקינות העבודה. הבנה ושרטוט לביצוע בחומרים שונים - HPL, אלומיניום 2 מ"מ, אלוקובונד, פייברצמנט, סופיט פאנל ועוד. הפקת חוברות פרטים, פריסות חיפוי, רשימות ציוד וכמויות, פתרון בעיות בשטח והנחיות למתקינים. תיאום אדריכלי מול קבלנים, יועצים ואדריכלים . -
תרשימת אלומיניום
13.06.22ריכוז פרטי אלומיניום לפרוייקט כולל איפיון פרופילים וזיגוג -
ציפורים בגן
15.11.16חלון מעל שיש במטבח המפריד בין פנים לחוץ כאשר מבחוץ בגינה יש מתקן למנגל גדול בנוי ולכן רצו להפריד -
ברגים באורכים שונים
16.07.23ברגים באורכים שונים. בעיקר ברגים לגבס. בתוך הקובץ יש את האורך של כל בורג. -
חתך בנין כללי
8.06.22חתך של בניין מגורים של 5 קומות מגורים, קומת כניסה, קומת גג וגג רעפים עם תוספת בניה להיתר בניה עם כל השכבות הנצרכות בהיתר בניה -חתך וכמה עומקים של מבט החתך מכיל מבט של חלונות ודלתות פנים וחותך גג רעפים משופע -
חלון בקיר מחופה אבן בתליה - חתך אנכי
8.10.07שני חתכים אנכיים לחלונות בקיר מחופה אבן בתליה (אחד מהם עם מסגרת אבן מובלטת). בפרטים ניתן לראות את הטיפול בחלון האלומיניום והצבתו בפתח בקיר בצורה המונעת חדירת מים, את הבידוד התרמי, תליית החיפוי, הסף הפנימי כדומה.







