חיפוש - דלפק , נגרות |1|
לא מצאת? פשוט חפש.
-
נגרות דלפק
27.01.21זהו נגרות, של דלפק כניסה, עם מגירות ועיצוב בצד החיצוני שלו. -
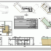
דלפק עץ נגרות
14.07.22נגרות מפורטת לדלפק עץ כולל תוכניות חזיתות וחתכים -
תוכנית נגרות - דלפק תצוגה לתכשיטים
25.05.07דלפק תצוגה לתכשיטים עשוי סנדוויץ' מצופה פורניר. הדלפק כולל תשתית לחיווט חשמל ותקשורת וכן וינטינה עליונה לתצוגה. חזית הויטרינה האחורית ניתנת לפתיחה על ידי המוכר ומותקנת על מסילות. -
תוכנית נגרות - דלפק קבלה
25.05.07דלפק נגרי ומשטח זכוכית מרחף המחובר אליו בחיבור עכבישים של דורמה. הדלפק עשוי גוף סנדוויץ מצופה פורניר ופורמיקה. התמונה הינה חלק מהשרטוט המלא. לשרטוט כולו - ראו קובץ PDF . -
דלפק קבלה
4.05.21דלפק קבלה בכניסה לספריה או מכונים עם 2 מקומות ישיבה ומחשבים בהצלחה! -
נגרות דלפק
21.07.21דלפק כניסה כולל תוכנית, חזית חתך ופרטים. בשילוב תאורה -
חתך בר עקרוני
26.05.14פרט חתך של בר לבית קפה או מסעדה. דלפק עשוי עץ על קיר בלוקים נמוך. -
דלפק קטן למטבח
12.05.22דלפק קטן צמוד למטבח כולל 4 כיסאות , גובה נמוך מהשיש, מתאים גם כשולחן אוכל קטן -
מטבח פריסות ותכנית
9.11.13מטבח לדוגמא מותאם לקנ"מ 1:25 כולל פריסות. חומרי גמר לבחירה. -
המזווה- בוטיק אוכל
2.12.14...הקירות שנצבעו בגווני השקד, נגרות מיוחדת, עץ טבעי שמשמים למדפים , דלפק אוכל והסתרת המעדנייה הקידמית. הפרזול גס ומהמם בצבע שחור. תאורה כסאות ומעדנייה אחת נצבעו בגווני התכלת כדי ליצור את החיבור . היה לי חשוב שהאוכל יהיה נקודת המוקד העיקרית וכל השאר יהווה רקע נעים ומזמין.יחד עם זאת יצרנו שפה אחידה בין הלוגו שבחרנו יחדיו לשלט החיצוני, לכיתוב המודפס על המפית והחיבור למקום .כמו בכל חלל מסחרי, הרעיון הוא לתת את הבמה לסחורה הנמכרת בו, וכך היה גם כאן.... -
במגדל תל אביבי מול הים
11.05.11...ובה כ - 1000 כותרים שמהווה אלמנט עיצובי ראשי בחדר המגורים. גם ספריות חדרי העבודה וארונות הבגדים תוכננו באופן פרטני לניצול מקסימלי של החלל. המטבח עוצב במגבלות של שטח קטן, והדגש היה פתיחתו אל הנוף הנשקף מבעד לחלונות. מיקומו של דלפק ארוחת הבוקר הכתיב את מבנה המטבח וכתוצאה מכך את מידותיו. הקסם שבארוחת בוקר מול נוף הים הפתוח היווה נקודת פתיחה לתכנון חלוקת הפנים של הדירה כולה. תכנון התאורה בחלל היווה אתגר נוסף. החלונות הגדולים הינם מקור לאור טבעי רב... -
בית הספר לאומנות הגבות
3.11.21כשהכרתי את מורן מזור היא התרגשה לספר לי שהיא, בעלה והילדה עוברים לראש העין והיא מתכננת לפתוח שם את בית הספר לאומנות הגבות. התחלנו מסע משותף של היכרות, הכרת הצרכים וחלום משותף- ליצור עיצוב חמים, מזמין ופונקציונאלי ע"י מיקסום השטח בצורה האידיאלית ושילוב אלמנטים של העצמה נשית. אז מה היה לנו? תוכניות העמדת רהיטים, שרטוטי נגרות ארון מתחת לגרם המדרגות,שרטוטי נגרות דלפק בהתאמה אישית, שולחן בהתאמה אישית, ליווי מלא לאורך כל הדרך ולקינוח ימי קניות מפנקים. -
נגרית יגל פרויקטים-מדיקל
22.12.16...ריים: מחלקה חדשה במדיקל סנטר הרצליה: חיפוי קירות בפורניר,ארון חשמל נסתר, ארונות אחסון נסתרים למראה נקי ואחיד,נישה מאחורי דלפק קבלה למכשור משרדי, דלפק קבלה מעוצב ביצור מיוחד, נישה למסך בקו אחיד עם ארונות, ארונות בחדרי טיפולים, חדר רופא . הכל ברמת דיוק ואיכות בלתי מתפשרת תוך הבנה של צרכי הלקוח ועמידה בסטנדרטים מחמירים של איכות ושימוש בטכנולוגיה החדשנית ביותר ע"י שימוש במערכות מחשב מדויקות לפי תכנית אדריכלית. נגרות: נגרית א.א יגל צילום: סוזי לוינסון -
מכון קוסמטיקה בפתח תקווה
17.05.16מכון קוסמטיקה פתח תקווה נתונים : מיקום גאוגרפי – פתח תקווה, שטח של 200 מ"ר. הצרכים: תכנון ועיצוב מכון קוסמטיקה שיכלול 6 חדרי טיפולים, 2 משרדים, חדר טלמרקטינג, חדר רחצה, מטבחון , פינת המתנה, דלפק קבלה וארונות אחסון למוצרים וצורכי משרד. קיבלתי חלל ריק לחלוטין ,חלק מהחלל בעל קווים ישרים וחלקו האחר קשתיים. בחרתי בחללים הגאומטריים לטובת חדרי הטיפולים, המשרדים וחדר הרחצה ובחלל הקשתי לטובת אזור הקבלה ופינת ההמתנה – החלל הציבורי בו פוגשות הלקוחות...







