חיפוש - חשמל , שרטוט |1| - דף 13
לא מצאת? פשוט חפש.
-
בלוקים לפי קטגוריות
28.12.20בקובץ ישנם בלוקים לפי קטגוריות מסוגים שונים: ריהוט, עצים, דלתות, כלי רכב, מוצרי חשמל ועוד ועוד. -
שרטוט דירה
21.10.20שירטוט דירה-מצב קיים ושני אופציות למצב מוצע כולל בלוקים של ריהוט ומידות בקנה מידה של 1:100 בלוקים דינמיים של חלונות בלוק של חבלי כביסה, עציצים, מכשירי חשמל בלוקים של אינסטלציה ומטבח -
תכנית דופלקס
27.02.22תכנית דירת דופלקס ב 2 קומות המשלב דירה של חמישה חדרים ומרפסת גג ענקית מעל, בקובץ ניתן למצוא בלוקים שונים של ריהוט מוצרי חשמל כלים סניטריים ועוד -
תכניות דירה
5.04.21קובץ תכניות אדריכליות לשיפוץ דירה, כולל תכנית אדריכלית, חשמל, אינסטלציה, ריהוט כולל בלוקים לריהוט -
תוכניות לנישות פלרים - מספר דוגמאות
5.12.07תוכניות לנישות פילרים - אלטרנטיבות שונות לסידור הביתן הכולל את התשתיות למים, חשמל, תקשורת ואשפה. הגרסאות מראות סידור שונה לביתנים עבור בית בודד או שני בתים. -
תכנון מטבח
2.07.24תכנון עיצוב מטבח מפורט כולל נגרות כולל חתכים ותוכנית כולל מכשירי חשמל ואינסטלציה -
סט תכניות עבודה
30.11.20סט תכניות עבודה לקבלן הכולל: מצב קיים תכנית הריסה תכנית בניה תכנית חשמל תכנית אינסטלציה ותכנית העמדת ריהוט -
שרטוט באוטוקד
24.05.20מבצעת שרטוטים ברמה גבוה מאוד עבור אדריכלים ,מעצבי פנים, קבלנים ומתכננים. מקצועית, עם תעודתה רשמית מטעם אוטודסק. בנוסף נותנת תמיבה טכנית במשרדי אדריכלים ומעצבי פנים. מעבירה שיעורים פרטיים, עוזרת בהתעמת אוטוקד במשרדים. בעלת ניסיון רב בביצוע תכניות חשמל, אינסטלציה, תאורה. פרטים בטלפון 054-729-4303 -
פרויקט עיצוב משרד-שרטוט אדרכלי
2.08.17במסגרת שירותי שרטוט אדריכלי, נתבקשתי להכין תוכניות עבודה (העמדה, חשמל, מיזוג, תאורה ופרט קיר טלויזיה, חתכים וחזיתות) לטובת עיצוב משרד באשדוד. בתיק פרוייקט זה מס' דוגמאות לתוכניות הללו. (כל הזכויות שמורות). -
ריכוז בלוקים לעיצוב פנים - פינת אוכל, חדר שינה, צמחייה
29.07.21פרטים שונים שעוזרים לעצב את החלל של הבית ליצירת מציאות סביבת עבודה אמיתית - פינת אוכל, מיטה, שטיח, אסלה, גז, כורסאות, צמחיה, ברזים וכיורים, ריהוט ומוצרי חשמל -
תכנית ממ"ד
23.06.25קובץ AutoCAD הכולל שרטוט ממ"ד מלא לפי תקנות פיקוד העורף: תוכנית קומת קרקע, חתכים אנכיים, פירוט זיון בטון, סימוני חשמל ואוורור, בלוקים של דלתות וחלונות ממוגנים. מתאים לשילוב ישיר בתכניות אדריכליות או הנדסיות, עם קנה מידה מדויק ותכנון מקצועי. -
תוכנית נגרות - דלפק תצוגה לתכשיטים
25.05.07דלפק תצוגה לתכשיטים עשוי סנדוויץ' מצופה פורניר. הדלפק כולל תשתית לחיווט חשמל ותקשורת וכן וינטינה עליונה לתצוגה. חזית הויטרינה האחורית ניתנת לפתיחה על ידי המוכר ומותקנת על מסילות. -
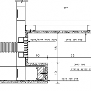
פרט תקרת גבס עם תריס סמוי
13.09.22פתחי השירות נועדו כדי לאפשר גישה קלה, נוחה ופשוטה למגוון מערכות.ביניהן: מערכות חשמל סמויות, מגופים ושסתומים של מערכות מים וגז, מרכזיות אבטחה וכדומה, המותקנות בחלל מחיצות הגבס או מעל תקרות גבס תותבות. -
סימוני בטיחות
27.03.22סימונים לתוכנית בטיחות ג- אזור ממוגן ע"י גלאי אש חץ- אזור מילוט- יציאה למקום בטוח AS- אזור מוגן מתזי מים אוטומטית עיגול עם איקס- מטף כיבוי ריבוע עם איקס- ארון חשמל ויש עוד מלא







