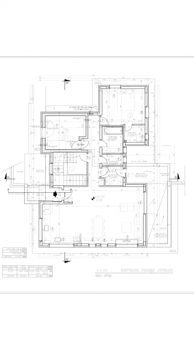
מודלים תכנוניים
בתקופה זו בה עלויות רכישות דירות נעשו גבוהות במיוחד מתגבש לאיטו חזון תכנוני חדש המציג מודלים תכנוניים מוכנים לבתים פרטיים מהם הלקוח יכול לבחור.
מכוון שאלו מודלים מוכנים וההתאמות הנדרשות לפי תנאי התבע יכולות להיות מועטות חוסך הלקוח את עלויות רוב התכנון ובכך מוזיל את עלויות הבנייה בסך הכללי
מכוון שאלו מודלים מוכנים וההתאמות הנדרשות לפי תנאי התבע יכולות להיות מועטות חוסך הלקוח את עלויות רוב התכנון ובכך מוזיל את עלויות הבנייה בסך הכללי
עוד מאתרוג אדריכלים
מוצרים דומים
קטגוריות
נושאים קשורים
חברות המשווקות מוצרים בתחום הבנייה והעיצוב מוזמנות להציג אותם באתר.
הוסף מוצר



