פרטי בנין
בחלק זה של הספריה תוכלו למצוא פרטי בניין לעיון והורדה.
אם אתם מנסים לאתר פרט מסוים תוכלו לעשות זאת בעזרת מנוע החיפוש
או בעזרת החלוקה לתגיות המופיעה בהמשך.
פרטי בנין אחרונים
-
פרט מדרגה טיפוסית בחיפוי שיש
28.06.20פרט מדרגה טיפוסית בחיפוי שיש, על יציקת מדרגות זיגזג עשויות בטון. -
פרט מדרגה עליונה למדרגות מעץ
28.06.20פרט מדרגה עליונה למדרגות RHS מחופות עץ וונגה מרחפות -
פרט "מקל סבא"
24.06.20פרט איטום עבור עליית צנרת לגג שטוח - מקל סבא -
פרט אספלט ואבן
24.06.20פרט חיבור בין קצה מדרכה לכביש. מתאים לפרטי פיתוח. -
מיסתור צילון
23.06.20חתך אנכי למיסתור צילון בקיר 20 -
פרט גג הפוך
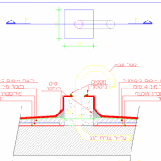
17.06.20פרט גג הפוך עם חלוקי נחל לאיטום מרבי -
פרט חלום חתך
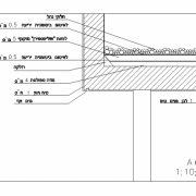
14.06.20פרט חלון בחתך 1.10 עובי קיר 28 סנטימטר כולל איטום וחיפוי לוחות פייבר צמנט -
בניה קלה
9.06.20קובץ של בניה קלה שימוש פרופילים RHS עם גגות משופעים ומדרגות קלות -
פרט גג רעפים גלוי
6.06.20פרט גג רעפים גלוי עם כל שכבות הבידוד -
פרט ניקוז
3.06.20פרט ניקוז למטבח תעשייתי, מתאים למסעדות ואולמות אירועים -
מעקה מרפסת
3.06.20פרט מעקה אלומיניום עם זכוכית בטחון למרפסת -
מערכת דו שכבתית לכיסוי גגות
1.06.20פרט למערכת דו שכבתית המורכבת מפח פלדה תחתון, בידוד, אומגות ופח פלדה עליון לקירוי גגות. היתרון המרכזי בהשוואה לפנל מבודד - הינה מהקטנת הסיכון לחדירת מים למבנה עקב דפורמציות שקורות במהלך השנים בפנל המבודד (בעיקר בפנל מבודד במילוי צמר סלעים שהינו כבד ונוטה לשקוע) וכמו כן האפשרות להחליף את כיסוי הגג העליון ברבות הזמן - ללא פירוק של כלל הגג. -
פרט מעקה לרצפת מתכת
31.05.20פרט של מעקה זכוכית מחוסמת חיבור למאחז יד וחיבור לרצפת מתכת -
תלייה יבשה
31.05.20אבן מבוצעת בשיטת תלייה יבשה על גבי קיר בטון , בעזרת פחיות פלב"ם מחוזקת באפוקסי -
פרט זווית חיבור בין עץ לפרופיל
31.05.20ארגז גובה 30 סנטימטרים מעץ .. חיבור בין העץ לפרופיל עץ בעזרת זווית חיבור בעזרת ברגים -
פרט מדרגות קלות
31.05.20מדרגות קלות מפלדה בשילוב עץ, פלדה משוננת, שלח עץ אגוז -
פרט חיפוי אלומיניום לקיר בטון
17.05.20פרט חיפוי לוחות אלומיניום לקיר בטון חיצוני + חיפוי מעקה גג . -
פרטי קיר רילפילד SmartShild
15.05.20חתך קיר חיצוני קיר מקלחת קיר פנים וחוץ ופרטי רצפה -
תכנית אדרכילית
15.05.20תכנית וילה חדשה באיזור מרכז הארץ 4 קומות -
מחסום רצפה למקלחת
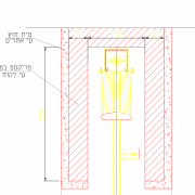
10.05.20מחסום רצפה למקלחת בחתך אנכי דרך הרצפה.
לא מצאת? פשוט חפש.
רשימות פרטי בנין על פי תגיות
המומחים של Saf
-
משרד הנדסי - נוימן נווה שגיא
אזור עבודה: כל הארץטלפון: 0525255615
-
קריסטל גרפיקס הדמיות בתלת מימד
אזור עבודה: כל הארץטלפון: 0545402128
-
פני אלימלך
אזור עבודה: כל הארץטלפון: 0507755878
-
ארטיום שירותי שרטוט/שומה וטאבו
אזור עבודה: כל הארץטלפון: 0527022177
-
ליאת רוזנברג
אזור עבודה: כל הארץטלפון: 0548084102
חדשות אחרונות
-
מחפשים מקצוע חיוני בלב מערך ההנגשה?
4.11.25מורשה לנגישות מבנים, תשתיות וסביבה (מתו״ס): מקצוע חיוני בלב מערך ההנגשה בישראלצורך חברתי ורקע חוקיהנגשת מבנים במרחב הציב... -
חוקרים בטכניון זכו בפרס עיצוב יוקרתי
1.11.25חוקרים בטכניון זכו בפרס עיצוב יוקרתי על פיתוח טכנולוגיה חדשה להגנה על שתילים צעיריםהדוקטורנט עופר אסף ופרופ' אהרן שפרכר ... -
פרויקטי גמר מהחוג לארכ בביהס לעיצוב של אונ חיפה
26.07.25כשהקרקע נשמטת - האדריכלות מגיבהמהנגשה אזרחית מחודשת של קריית הלאום בירושלים, דרך תכנון מחדש של מרחב תעשייתי פחמי בחדרה, ...
תרום גם אתה!
הוסף קובץ לספרייה הפתוחה של אתר Saf. טען קובץ מקורי
הוסף קובץ לספרייה הפתוחה של אתר Saf. טען קובץ מקורי
עקוב אחר פרטי בנין חדשים באתר.
RSS









