סימבולים / בלוקים
חלק זה של הספריה מרכז עבור אדריכלים בלוקים וסימבולים לתוכנת אוטוקאד ותוכנות שרטוט דומות. אם ברצונכם
למצוא בלוק להורדה, תוכלו לאתר אותו דרך מנוע החיפוש של האתר או על פי
התגיות.
סימבולים / בלוקים אחרונים
-
גגון זכוכית
1.03.20גגון זכוכית משולב אלומיניום, חזית, חתך, תכנית -
בלוקים של ספרים
1.03.20בלוקים של ספרים אחד ליד השני לשים בסיפריה או בארונות -
מדרגות פלדה ואבן
1.03.20פרט מדרגות פלדה ואבן מעל הכולל תכנית וחתך המדרגות וכן את אופן הנחת האבן על המדרגה -
בורג בודד
1.03.20בורג פלדה בודד מתאים לשרטוטי פרטים -
שידה עיצובית חדשה
1.03.20שידה יפה בתלת מימד מתאימה לכל חדר בעיצוב מודרני איטלקי -
אבני מדרך
1.03.20בלוק אבני מדרך, לתכנית פיתוח, לעיצוב ותכנון -
פריסת חדר רחצה
28.02.20תוכנית ופריסות לחדר רחצה כולל שירותים -
חתך עמדת מחשב
26.02.20חתך של עמדת מחשב, בפועל 6 עמדות כאלו מתחברות זו לזו ברצף -
מקרר ותנור
26.02.20חזית בילד אין מקרר תנור ומיקרו בארונות מטבח -
פרט מדרגה מרחפת אחרונה בחיפוי
26.02.20מדרגה מרחפת בחיפוי עץ עם חיבור לבטון -
שולחן רחב
26.02.20שולחן רחב ל8 סועדים מעוצב בדמויי עץ -
מקרא תכנית הריסה
26.02.20מקרא של תכנית הריסה כולל חומרים והערות -
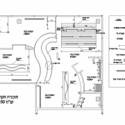
תכנון משרד מושלם בצורה מפורטת
26.02.20תכנון משרד מפורט כולל: תוכנית יצוגית, תוכנית ריצוף, תוכנית עבודה, תוכנית תקרה, פרט דלפק קבלה מקורי מכל הצדדים, פרט הנמכת תקרת גבס, חשמל תאורה מיזוג אויר, פריסות מכל הצדדים כולל פרוט ספריה. -
חלון דמי להסתרת קורה
26.02.20חלון דמי להסתרת קורה, חלון דמי , קיר חוץ, קיר מסך , חלון מסתיר -
דלת 70 סמ
25.02.20דלת כניסה לחדר 70 סמ ניתן לפוצץ ולהגדיל ולהקטין את הדלת לגודל הרצוי -
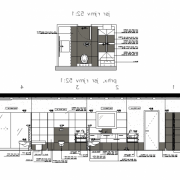
פריסת לובי
25.02.20חזית של לובי המתנה הכוללת כורסאות כיסאות ועמדת קבלה -
דלפק עם מחשב וכיסא -סימבולי דו
25.02.20דלפק גבוהה 110 עם מחשב ומקלדת ,כיסא בר -
תוכנית מרתף
24.02.20תוכניות מרתף לתכנון קונסטרוקטיבי מלא כולל מיקום עמודים וסידור קורות היקפיות יורדות בהיקף חלל המבנה. -
חץ ימינה ושמאלה
24.02.20חץ ימינה ושמאלה לסימון בכבישים -
מיטת יחיד
24.02.20בלוק למיטת יחיד גודל סטנדרט כרית ושמיכה. חדר שינה - ילדים חדר שינה- מתבגר שרטוט טקסטיל חדר ילדים
לא מצאת? פשוט חפש.
רשימות סימבולים / בלוקים על פי תגיות
המומחים של Saf
-
גילי לידסקי
אזור עבודה: רעננה - כפר סבאטלפון: 052-6158568
-
שני שטלריד
אזור עבודה: כל הארץטלפון: 0542057676
-
קריסטל גרפיקס הדמיות בתלת מימד
אזור עבודה: כל הארץטלפון: 0545402128
-
גילה אזולאי - צלמת חללים
אזור עבודה: כל הארץטלפון: 0544774218
-
הדמיות אדריכליות | MHVIZUAL
אזור עבודה: כל הארץטלפון: 0543020670
חדשות אחרונות
-
מחפשים מקצוע חיוני בלב מערך ההנגשה?
4.11.25מורשה לנגישות מבנים, תשתיות וסביבה (מתו״ס): מקצוע חיוני בלב מערך ההנגשה בישראלצורך חברתי ורקע חוקיהנגשת מבנים במרחב הציב... -
חוקרים בטכניון זכו בפרס עיצוב יוקרתי
1.11.25חוקרים בטכניון זכו בפרס עיצוב יוקרתי על פיתוח טכנולוגיה חדשה להגנה על שתילים צעיריםהדוקטורנט עופר אסף ופרופ' אהרן שפרכר ... -
פרויקטי גמר מהחוג לארכ בביהס לעיצוב של אונ חיפה
26.07.25כשהקרקע נשמטת - האדריכלות מגיבהמהנגשה אזרחית מחודשת של קריית הלאום בירושלים, דרך תכנון מחדש של מרחב תעשייתי פחמי בחדרה, ...
תרום גם אתה!
הוסף קובץ לספרייה הפתוחה של אתר Saf. טען קובץ מקורי
הוסף קובץ לספרייה הפתוחה של אתר Saf. טען קובץ מקורי
עקוב אחר סימבולים / בלוקים חדשים באתר.
RSS









