סימבולים / בלוקים
חלק זה של הספריה מרכז עבור אדריכלים בלוקים וסימבולים לתוכנת אוטוקאד ותוכנות שרטוט דומות. אם ברצונכם
למצוא בלוק להורדה, תוכלו לאתר אותו דרך מנוע החיפוש של האתר או על פי
התגיות.
סימבולים / בלוקים אחרונים
-
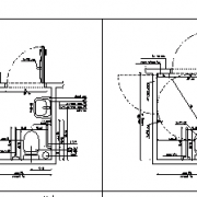
גג בריכה
29.12.19שטוט גג בקומה 3 בריכה מלבן ובר כיסאות -
כיריים מבט על
29.12.19בלוקים וסימבולים עבור מטבח - כיריים מבט על -
סמל של דואר ישראל
29.12.19סמל צבי דואר ישראל בחזית בניין או בתיבת רחוב -
חלון dynamic window
27.12.19חלון - דינמיק בלוק שמשתנה לפי הצורך בקלות . -
מסעדות ו באר בסגנון מודרני
27.12.19קובץ בלוקים שמכיל ריהוט מסעדה בסגנון מודרני. בלוקים של בית קפה , באר , מסעדה. כורסאות ושולחנות מודרניות. -
מפה טופוגרפית
27.12.19פרט טפסנות עמוד בדל בבית פרטי לביצוע בפורמט פרט טפסנות עמוד בדל בבית פרטי לביצוע בפורמט PDF -
פרט רפפות אלומניום
26.12.19פרט בניין חיפוי רפפות אלומניום בדמוי עץhpl. מידות וחומרים -
שרטוטים וחישובים שנה ב עיצוב
26.12.19טוב לתכנון עם בלוקים שניתנים לשימוש רב פעמי -
פרט ראש מערכת מתזים (ללא קנ"מ)
26.12.19פרט ראש מערכת מתזים (ללא קנ"מ) -
בלוקים בתלת מימד של צמחיה
26.12.19בלוקים של צמחיה לצורך גינות מרפות חצרות -
תמרור משולש
26.12.19תמרור מס' 301 (משולש) האט ותן זכות קדימה -
תכניות סלון
26.12.19הקובץ כולל 4 תכניות הנחה לריהוט בחלל מגורים -
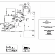
משרד תוכנית
25.12.19תוכנית משרד עם הרבה בלוקים ומידות בפנים -
תוכנית לדירת קבלן
23.12.19תוכנית אדריכלית לדירת קבלן מתוך תיק עבודות לימודים עיצוב ואדריכלות פנים -
אנשים לאוטוקד
23.12.19אנשים, בלוקים לאוטוקד, אנשים לאוטוקד -
אופניים יפות קובץ אוטוקד
23.12.19בלוק יפייפה של אופניים -
שעון קיר מיוחד ומושקע
23.12.19שעון קיר מיוחד ומושקעע, מתאים לחדרי אמבטיה, וכן לפינת ישיבה -
דלת עם משקוף פח
23.12.19דלת כנף עץ ומשקוף פח מכופף, פרט מסגרות -
בלוקים חצי צפון
23.12.19חצים, חץ צפון, משלושים, צפון דרום מזרח מערב -
משקולות קטלבלס
23.12.19משקולות קטלבלס. כושר משקולות להורדה
לא מצאת? פשוט חפש.
רשימות סימבולים / בלוקים על פי תגיות
המומחים של Saf
-
ארטיום שירותי שרטוט/שומה וטאבו
אזור עבודה: כל הארץטלפון: 0527022177
-
מושי גיטליס - צלם אדריכלות
אזור עבודה: כל הארץטלפון: 052-4759925
-
הדר כהן - שירותי שרטוט למעצבים
אזור עבודה: כל הארץטלפון: 0522454389
-
סיגל שרווין
אזור עבודה: כל הארץטלפון: 0542622088
-
אפקט המודעות פרסום מודעה בעיתו
אזור עבודה: כל הארץטלפון: 1700703021
חדשות אחרונות
-
מחפשים מקצוע חיוני בלב מערך ההנגשה?
4.11.25מורשה לנגישות מבנים, תשתיות וסביבה (מתו״ס): מקצוע חיוני בלב מערך ההנגשה בישראלצורך חברתי ורקע חוקיהנגשת מבנים במרחב הציב... -
חוקרים בטכניון זכו בפרס עיצוב יוקרתי
1.11.25חוקרים בטכניון זכו בפרס עיצוב יוקרתי על פיתוח טכנולוגיה חדשה להגנה על שתילים צעיריםהדוקטורנט עופר אסף ופרופ' אהרן שפרכר ... -
פרויקטי גמר מהחוג לארכ בביהס לעיצוב של אונ חיפה
26.07.25כשהקרקע נשמטת - האדריכלות מגיבהמהנגשה אזרחית מחודשת של קריית הלאום בירושלים, דרך תכנון מחדש של מרחב תעשייתי פחמי בחדרה, ...
תרום גם אתה!
הוסף קובץ לספרייה הפתוחה של אתר Saf. טען קובץ מקורי
הוסף קובץ לספרייה הפתוחה של אתר Saf. טען קובץ מקורי
עקוב אחר סימבולים / בלוקים חדשים באתר.
RSS









