סימבולים / בלוקים
חלק זה של הספריה מרכז עבור אדריכלים בלוקים וסימבולים לתוכנת אוטוקאד ותוכנות שרטוט דומות. אם ברצונכם
למצוא בלוק להורדה, תוכלו לאתר אותו דרך מנוע החיפוש של האתר או על פי
התגיות.
סימבולים / בלוקים אחרונים
-
ספה צבעונית
24.11.19ספה צבעונית לתכנית מכר, לתכניות בדו מימד , ניתן להחליף את הצבעים ע"פ בחירה. -
סימוני חתך
24.11.193 סוגי סימוני חתכים לשרטוט טכני ואדריכילי יש לסמן את שם החתך כגון: חתךA-A או חתך B-B וכו -
מדרגות קלות
24.11.19עם מעקה תקני של כבלי פלדה , שלח מעץ ותמיכה של קורה מרכזית מפרופיל פלדה -
שולחן עם כסאות מוכנסים 10X80
22.11.19שולחן עם 6 כסאות במידות 180X80 עם כסאות מוכנסים על מנת ליצור יותר מקום בשרטוט -
בלוק מזרקה
22.11.19בלוק מזרקה מבט על -
כיסא- במבט על - תוכנית
20.11.19כיסא במבט על/ תכנית , רוחב 56 ס"מ -
פרט שולחן משולב עץ ופלדה
20.11.19פרט שולחן מקונסטרוקציית פלדה מעוגנת לרצפת בטון. משטחי עליון עשויים עץ טיק גושני. -
מיטות בתכנית בגדלים שונים
20.11.19מיטות בתכנית בגדלים שונים, מתאים לאוטוקאד, כל הגירסאות. -
מוט פינוק לאמבטיה
20.11.19מוט פינוק לאמבטיה, ברז למקלחת, עם ג'טים מרובע מאורך. תכנית מהחזית -
ריבוע גדול בשכבת 0
20.11.19ריבוע משורטט בשכבת 0 לשינוי לא סגור כך שניתן להרחיבו -
ברגים במגוון סוגים ואורכים
19.11.19ברגים במגוון סוגים ואורכים כולל ציר מרכזי -
סימבולים שירותים ואינסטלציה
19.11.19סימבולים שירותים ואינסטלציה -
חלוקת חלל מסחרי
18.11.19תכנון וחלוקת חלל המיועד להשכרת חדרי כיתות לימוד. -
שולחן חדר ישיבות
18.11.19שולחן חדר ישיבות לעיצובי פנים ופריסות -
סלון מערכות ישיבה
17.11.19מערכות ישיבה לחדר מגורים כורסאות ספות שולחן קפה -
ארון כיור רחצה ומראה
17.11.19ארון במידה 74 ס"מ עם כיור רחצה כולל סיפון ומראה קטנה -
מפה של מדרגות
17.11.19מדרגות, מעקות, מפת מדרגות, רום, שלח -
מטבחים בחתכים
14.11.19סוגים שונים של אובייקטים במטבח: ברזים, כיורים, מקררים, תנורים, מיקרו, כיריים, קולט אדים ועוד -
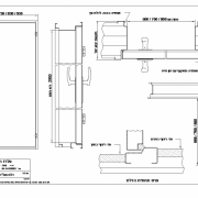
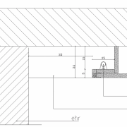
פרט תקרת ניתוק
14.11.19מבט פרט לתקרת גבס בניתוק מהקיר ליישום תאורה נסתרת -
דלת ממד פתיחה צירית
14.11.19דלת ממד פתיחה צירית דלת ממד פתיחה צירית
לא מצאת? פשוט חפש.
רשימות סימבולים / בלוקים על פי תגיות
המומחים של Saf
-
מדידות פנים - My Plan
אזור עבודה: כל הארץטלפון: 0528224788
-
עפרה יעיש תכנון ואדריכלות פנים
אזור עבודה: כל הארץטלפון: 0503884846
-
דנה ליר אלעני ליר אדריכלים
אזור עבודה: כל הארץטלפון: 036817601
-
הדמיות אדריכליות | MHVIZUAL
אזור עבודה: כל הארץטלפון: 0543020670
-
קריסטל גרפיקס הדמיות בתלת מימד
אזור עבודה: כל הארץטלפון: 0545402128
חדשות אחרונות
-
מחפשים מקצוע חיוני בלב מערך ההנגשה?
4.11.25מורשה לנגישות מבנים, תשתיות וסביבה (מתו״ס): מקצוע חיוני בלב מערך ההנגשה בישראלצורך חברתי ורקע חוקיהנגשת מבנים במרחב הציב... -
חוקרים בטכניון זכו בפרס עיצוב יוקרתי
1.11.25חוקרים בטכניון זכו בפרס עיצוב יוקרתי על פיתוח טכנולוגיה חדשה להגנה על שתילים צעיריםהדוקטורנט עופר אסף ופרופ' אהרן שפרכר ... -
פרויקטי גמר מהחוג לארכ בביהס לעיצוב של אונ חיפה
26.07.25כשהקרקע נשמטת - האדריכלות מגיבהמהנגשה אזרחית מחודשת של קריית הלאום בירושלים, דרך תכנון מחדש של מרחב תעשייתי פחמי בחדרה, ...
תרום גם אתה!
הוסף קובץ לספרייה הפתוחה של אתר Saf. טען קובץ מקורי
הוסף קובץ לספרייה הפתוחה של אתר Saf. טען קובץ מקורי
עקוב אחר סימבולים / בלוקים חדשים באתר.
RSS









