סימבולים / בלוקים
חלק זה של הספריה מרכז עבור אדריכלים בלוקים וסימבולים לתוכנת אוטוקאד ותוכנות שרטוט דומות. אם ברצונכם
למצוא בלוק להורדה, תוכלו לאתר אותו דרך מנוע החיפוש של האתר או על פי
התגיות.
סימבולים / בלוקים אחרונים
-
שולחן עגול לחתך וחזית עשוי עץ
7.07.19שולחן עגול. המתאים לחתך. מתאים לשמוש בפינות אוכל. חדרי אוכל במלון, מרפסות. השולחן עשוי מבסיס עץ עם רגל אחת עשויה עץ. מידות השולחן גובה: 100, קוטר:47 -
אמבטיה ומקלחת
7.07.19אמבטיות ואביזרי שירותים ומקלחת נוספים -
כורסא לסלון
7.07.19כורסא במבט שני מושבים מיועדת לסלונים או לפינות ישיבה , משרדים ועוד -
מפגש וירטינה עם דק
7.07.19פרט בניין מפגש ריצוף פנים וחוץ ויטרינה עם דק -
כיור כפול
6.07.19כיור כפול למטבח במידות 0.84/0.56 כולל ברז -
שולחן חדר ישיבות
5.07.19שולחן חדר ישיבות הכולל שולחן ארוך עם 9 כיסאות משרד מצויינות -
אמבטיה לחדר אמבטיה
4.07.19אמבטיה עיצובית חברת דורון 170/70 עכשיו במבצע -
בלוק של אדם בכסא גלגלים
4.07.19בלוק של אדם בכסא גלגלים מבט על וצד -
ארונות מטבח חזיתות
4.07.19תוכניית מטבח עם חזיתות ומוצרי חשמל -
בלוק ספרים
3.07.19בלוק מבט של ספרים למדף לשימוש בפריסות -
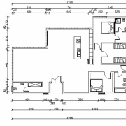
תוכנית בית
3.07.19בית פרטי קרקע תוכנת העמדה של חדרים שירותים מטבח -
פרטי נגרות מטבח
3.07.19אי למטבח, קלפה, ארונות, חזיתות בסגנון כפרי -
פרט חיבור חלון לקיר גבס
3.07.19פרט של חיבור חלון מפרופיל אלומינים לקיר גבס במכולה -בניה קלה -
מעקה זכוכית
3.07.19בלוק דינמי מעקה זכוכית עם מסגרת שחורה -
תאורה תלוייה
3.07.19קובץ גופי תאורה תלויים דקורטיביים -
בלוקים של אנשים באוטוקד
3.07.19בלוקים של אנשים באוטוקד, אנשים שנראים כמו רובוטים, זכר ונקבה -
חדר שינה- בלוקים
3.07.19ריהוט לחדר שינה , בלוקים, סימבולים -
בלוקים לחדר רחצה
3.07.19בלוקים לחדר רחצה, אמבטיה,אסלות,מקלחונים,כיורים -
כיבוי אש - סימונים
3.07.19יש בקובץ בלוקים המשמשים עבור סימונים של כיבוי אש -
בלוק כיור מטבח
3.07.19בלוק של כיורי מטבח במבט על, לתוכנית
לא מצאת? פשוט חפש.
רשימות סימבולים / בלוקים על פי תגיות
המומחים של Saf
-
מדידות פנים - My Plan
אזור עבודה: כל הארץטלפון: 0528224788
-
גילה אזולאי - צלמת חללים
אזור עבודה: כל הארץטלפון: 0544774218
-
ליאת רוזנברג
אזור עבודה: כל הארץטלפון: 0548084102
-
סאן דיזיין פרויקטים
אזור עבודה: כל הארץטלפון: 0559139292
-
סטודיו יעקב אבישי
אזור עבודה: כל הארץטלפון: 0542118681
חדשות אחרונות
-
מחפשים מקצוע חיוני בלב מערך ההנגשה?
4.11.25מורשה לנגישות מבנים, תשתיות וסביבה (מתו״ס): מקצוע חיוני בלב מערך ההנגשה בישראלצורך חברתי ורקע חוקיהנגשת מבנים במרחב הציב... -
חוקרים בטכניון זכו בפרס עיצוב יוקרתי
1.11.25חוקרים בטכניון זכו בפרס עיצוב יוקרתי על פיתוח טכנולוגיה חדשה להגנה על שתילים צעיריםהדוקטורנט עופר אסף ופרופ' אהרן שפרכר ... -
פרויקטי גמר מהחוג לארכ בביהס לעיצוב של אונ חיפה
26.07.25כשהקרקע נשמטת - האדריכלות מגיבהמהנגשה אזרחית מחודשת של קריית הלאום בירושלים, דרך תכנון מחדש של מרחב תעשייתי פחמי בחדרה, ...
תרום גם אתה!
הוסף קובץ לספרייה הפתוחה של אתר Saf. טען קובץ מקורי
הוסף קובץ לספרייה הפתוחה של אתר Saf. טען קובץ מקורי
עקוב אחר סימבולים / בלוקים חדשים באתר.
RSS









