פרטי בנין
בחלק זה של הספריה תוכלו למצוא פרטי בניין לעיון והורדה.
אם אתם מנסים לאתר פרט מסוים תוכלו לעשות זאת בעזרת מנוע החיפוש
או בעזרת החלוקה לתגיות המופיעה בהמשך.
פרטי בנין אחרונים
-
אבן גן בגינון
30.09.20פרט אבן גן- מעבר מריצוף לגינון עם אבן גן -
פרט קיר תומך + חומה בנויה
18.09.20הפרש גבהים בין קרקע לקרקע שכנה עם קיר תומך המעוגן לכלונסאות ונושא חומה בנויה עם חגורות אנכיות ואופקיות בגובה סטנדרטי. -
פרט קצה מדרגה
15.09.20פרט קצה מדרגה עם ריצוף גרניט פורצלן כולל עיבוד פאזה ופס נגד החלקה מסותת -
בלוק קיר
11.09.20קובץ זה מכיל פרט חלון משתלב עם הקיר בתוך קובץ של dwg -
פרט עמוד
16.08.20פרט עמוד שבו מופיע תיאור הברזל האנכי והחישוקים , תיאור החפייה בין המוטות האנכיים -
חיבור מעקה זכוכית
16.08.20חיבור מעקה זכוכית - פופיל U - מעקה מדרגות -
מוט חוטי ברזל חודר מדרגה ותקרה
10.08.20מוט עיצובי בסגנון חוטי ברזל, חודרות דרך המדרגה ומעוגנות לתקרת בטון. -
פרט גג שטוח
10.08.20פרט גג שטוח עם קיר בתוספת חיפוי לוחות עץ -
מתקן תליה לסולם מתקפל
4.08.20מתקן תליה לסולם מתקפל לעלייה חיצונית לגג כולל ווים ושער פלדה לסגירת מעקה הגג -
מדרגות חירום
30.07.20מדרגות חירום ליציאה מגג או מרפסת -
פרט גג קימרון
30.07.20פרט גג קמרון מפרופילי פלדה, חיפוי עץ פנימי ואיטום ביריעות אוטמטיות -
פרט חלון עמוד ודלת הזזה
25.07.20פרט של חלון בעל 3 דלתות עמוד בטון ואחריהם יש ויטרינה,דלת הזזה זכוכית עם 4 דלתות -
פרט חלון
22.07.20פרט חלון לחדר בחתך וחזית קל להבנה -
פרטי איטום גגות
19.07.20מספר פרטי איטום שונים של גגות של מבנה שעבדנו עליו במשרד -
פרט בריכה וספסל בטון
12.07.20פרט שמראה את החיבור של הבריכה שלידה גדר בטון ומעליה זכוכית שמשמשת כספסל בטון עם חיפוי עץ.פרט חוץ, בריכה עם דק עץ מסביב, פרט דשא סינטטי עם מצע ליד ספסל בטון ועץ -
פרט חלון בולט
9.07.20פרט חלון בנוי בולט מקו מישור החזית במטבח -
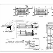
פרט מדרגות קלות
7.07.20מדרגות קלות בקונסטרוקציית פלדה עם שלח עץ ורום זכוכית חוסמת -
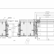
קיר כפול
6.07.20קיר כפול להפרדה בין דירות במצבים בהם נידרש לתלות אביזרים על קיר ההפרדה -
פרט מעקה בנוי של מדרגות
5.07.20פרט מעקה בנוי בטון עם קופינג שיש סיומת במדרגות שיש. -
פרוייקט גמר הנדסת בניין
30.06.20בניין 10 קומות באיזור אריאל, בקובץ מוצג החתכים והחזיתות של המבנה, בנוסף סידור ברזל בתקרות בעמודים ובקורות וסידור כלונסאות.
לא מצאת? פשוט חפש.
רשימות פרטי בנין על פי תגיות
המומחים של Saf
-
סאן דיזיין פרויקטים
אזור עבודה: כל הארץטלפון: 0559139292
-
בית הספר הארצי להנדסאים
אזור עבודה: הגלילטלפון: 04-8297115
-
אורלי דבי מעצבת פנים
אזור עבודה: אזור השרוןטלפון: 0502737378
-
משרד הנדסי - נוימן נווה שגיא
אזור עבודה: כל הארץטלפון: 0525255615
-
פני אלימלך
אזור עבודה: כל הארץטלפון: 0507755878
חדשות אחרונות
-
מחפשים מקצוע חיוני בלב מערך ההנגשה?
4.11.25מורשה לנגישות מבנים, תשתיות וסביבה (מתו״ס): מקצוע חיוני בלב מערך ההנגשה בישראלצורך חברתי ורקע חוקיהנגשת מבנים במרחב הציב... -
חוקרים בטכניון זכו בפרס עיצוב יוקרתי
1.11.25חוקרים בטכניון זכו בפרס עיצוב יוקרתי על פיתוח טכנולוגיה חדשה להגנה על שתילים צעיריםהדוקטורנט עופר אסף ופרופ' אהרן שפרכר ... -
פרויקטי גמר מהחוג לארכ בביהס לעיצוב של אונ חיפה
26.07.25כשהקרקע נשמטת - האדריכלות מגיבהמהנגשה אזרחית מחודשת של קריית הלאום בירושלים, דרך תכנון מחדש של מרחב תעשייתי פחמי בחדרה, ...
תרום גם אתה!
הוסף קובץ לספרייה הפתוחה של אתר Saf. טען קובץ מקורי
הוסף קובץ לספרייה הפתוחה של אתר Saf. טען קובץ מקורי
עקוב אחר פרטי בנין חדשים באתר.
RSS









