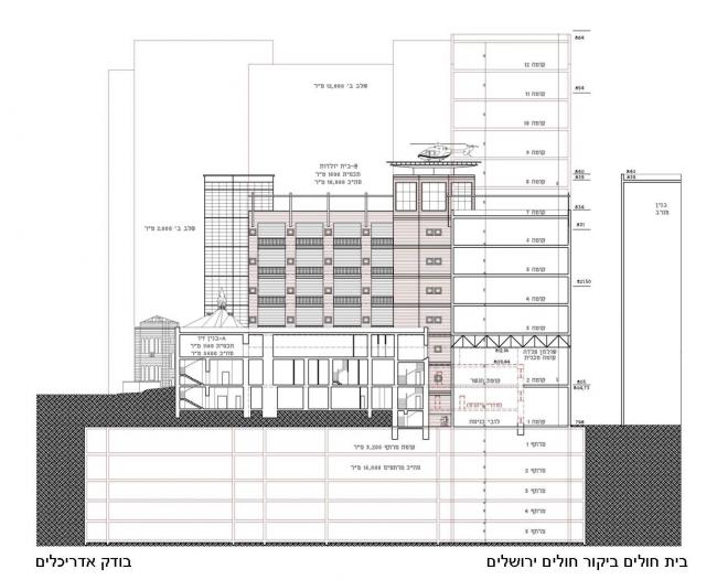
בית החולים ביקור חולים ירושלים חתך צפון-דרום

בית החולים ביקור חולים ירושלים חתך צפון-דרום

תגובות