סטודיו קדם | שיפוץ בית כנסת אוהל שמעון ר"ג | תוכנית לפני השיפוץ
  • כניסה / הרשמה
  • ראשי
  • ספריה
  • פורומים
  • חדשות
  • אינדקס
  • לימודים
  • וואצאפ
  • מחשבונים
  • ClassRoom
  • מאמרים
  • פרוייקטים
  • לוח עבודות לביצוע
    • לוח אדריכלים ומעצבי פנים
    • לוח שיפוצים ובניה
    • לוח בניה קלה ופנל מבודד
  • לוח אדריכלים ומעצבי פנים
  • לוח שיפוצים ובניה
  • לוח בניה קלה ופנל מבודד
  • קשרי אדריכלים
  • מוצרים ושירותים
  • אחד על אחד
  • לוח אירועים
  • דרושים
אורח  |  כניסה
  • מאמרים
  • פרוייקטים
  • לוח עבודות לביצוע
    • לוח אדריכלים ומעצבי פנים
    • לוח שיפוצים ובניה
    • לוח בניה קלה ופנל מבודד
  • לוח אדריכלים ומעצבי פנים
  • לוח שיפוצים ובניה
  • לוח בניה קלה ופנל מבודד
  • קשרי אדריכלים
  • מוצרים ושירותים
  • אחד על אחד
  • לוח אירועים
  • דרושים
  • ראשי
  • ספריה
  • פורומים
  • חדשות
  • אינדקס
  • לימודים
  • וואצאפ
  • מחשבונים
  • ClassRoom

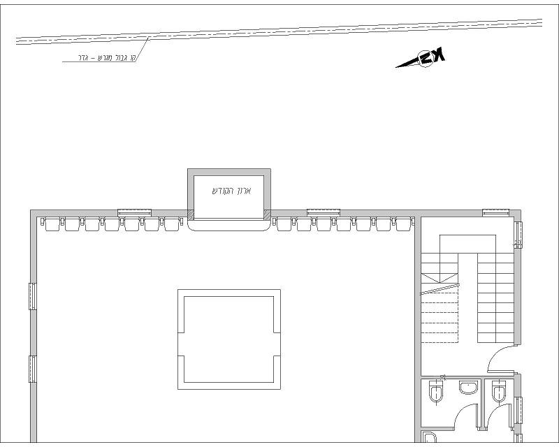
תוכנית לפני השיפוץ

סטודיו קדם >>
שיפוץ בית כנסת אוהל שמעון ר"ג >>
תוכנית לפני השיפוץ
תוכנית לפני השיפוץ
למחשבון שכר טרחה אדריכלים ומעצבי פנים

תגובות


מציגי הפרויקט

  • סטודיו קדם
  • קליק לחיוג: 052-238546
  • טלפון:
    052-238546
  • X
    רוצים עוד מידע?
    צריכים אדריכל, מעצב פנים או מהנדס?
    השאירו פרטים כאן והמומחים של saf יחזרו אליכם בהקדם
  • כתובת:
    שבט 45 מודיעין
  • אתר:
    www.studiokedem.co.il
  • חדשות
  • מאמרים
  • פרויקטים
  • לוח אדריכלים ומעצבי פנים
  • לוח שיפוצים ובניה
  • לוח בניה קלה ופנל מבודד
  • לוח אירועים
  • המוסף השבועי
  • איזור לימודים
  • קבוצות וואצאפ
חברי האתר מוזמנים לפרסם פרויקטים של אדריכלות, עיצוב ובנייה. הוסף פרוייקט פרסם את עצמך ללקוחות אפשריים (חינם)

השארו מעודכנים

  • הרשמו לניוזלטר
  • עיקבו אחרינו בפייסבוק
  • הרשמו לערוצי RSS

ClassRoom

  • קורסים
  • Designer Club

הורדות קבצים

  • פרטי בנין
  • בלוקים לאוטוקאד
  • משאבים
  • פונטים לאוטוקאד

פורומים

  • פורום אדריכלות
  • פורום עיצוב פנים
  • הום סטיילינג
  • פורום סטודנטים
  • פורום אוטוקאד
  • פורום SketchUp

אינדקסים ורשימות

  • אדריכלים
  • מעצבי פנים
  • מהנדסים
  • קבלנים

אתר Saf

  • תקנון ומדיניות פרטיות
  • אודות
  • פרסום באתר
  • צור קשר
  • הצהרת נגישות
  •  
  • Saf ©
x