חיפוש - חיפוי חוץ , חלונות |1|
לא מצאת? פשוט חפש.
-
ויטרינת אלומיניום זכוכית, פרט רפפה עליונה במפגש עם חיפוי אבן
20.05.07פרט חתך אנכי בחיבור ויטרינת אלומיניום זכוכית תקרת בטון מחופה אבן מבחוץ וטיח פנים. הפרט מראה סגירת והסתרת קצה פרופיל עם לוח גבס מהצד הפנימי וכן אף מים ויריעת איטום בצידו החיצוני. -
רצף חלונות בקיר מחופה פח מורכב - חתך אנכי
2.07.07פרט חתך אנכי במפגש קיר מחופה קסטות פח עם רצף חלונות. לחלון מבחוץ יש כנף הצללה קבועה. הפרט מראה את חיבור החיפוי אל הקיר בסף העליון והתחתון של החלון ואת האיטום למניעת חדירת מים. צידו הפנימי של הקיר מחופה בלוחות גבס. -
חיפוי אבן - חיפוי יבש עם פוגות ומפגש חלון
19.08.07פרט חתך אנכי לחיפוי קיר בשיטת חיפוי יבש הכולל מרווח לפוגה. אריחי הסיליקט לציפוי הקיר מחוברים אל הקיר בעזרת אביזר תליה מפלדה. הפרט מראה גם מפגש עם חלון וסף עליון ותחתון. -
רצף חלונות בקיר מחופה פח מורכב - מפתח
2.07.07מפתח פרטים לשני דפים המפרטים את חיבור החלונות בקיר מחופה לוחות פח (קסטות). חתך אופקי חתך אנכי -
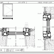
רצף חלונות בקיר מחופה פח מורכב - חתך אופקי
2.07.07פרט חתך אופקי במפגש קיר מחופה קסטות פח עם רצף חלונות. הפרט מראה את חיבור החיפוי אל הקיר באזור החלון ואת חיבור החלון עצמו אל קיר הבטון. צידו הפנימי של הקיר מחופה בלוחות גבס על גבי ניצבים כשבינם לבין קיר הבטון מוצמדות יריעות צמר זכוכית לקבלת בידוד תרמי. -
ויטרינת אלומיניום זכוכית, פרט חיבור לקיר מחופה פח
20.05.07פרט חתך אופקי בחיבור ויטרינת אלומיניום זכוכית אל קיר בטון מחופה פח מרוכב מבחוץ ולוחות גבס מבפנים. -
חלון פתיחה פנימה בקיר מחופה אבן
2.07.07תוכנית וחתך בחלון ציר צד, פתיחה פנימה, בקיר מחופה מצידו החיצוני באבן ומצידו הפנימי בגבס. הפרט נראה את אף המים בסף העליון ומדרגת הבטון בסף התחתון. צד החלון מחופה גם הוא אבן. הקיר בחלקו הפנימי מבודד על ידי קיר גבס עם בידוד תרמי ולוח גבס. -
חלון בנישה טרפזית מחופה אבן
2.07.07שרטוט תוכנית וחתך של חלון אלומיניום פתיחה פנימה. החלון שקוע בנישה טרפזית מצידו החיצוני. נישה זו מחופה אבן. צד הקיר הפנימי בציפוי של לוח גבס בודד. בפרט ניתן לראות התקנה של משקוף עיוור המסייע לסגירת גמר האבן ואת המדרגה הנדרשת בסף התחתון למניעת כניסת מים. -
חתך אופקי בחלון בקיר מחופה אבן ירושלמית
4.07.07חתך אופקי בפרט חיבור חלון אלומיניום לקיר מחופה אבן ירושלמית. לצורך קבלת החלון מבוצע משקוף עיוור בולט ואיטום כך שלאחר החיפוי באבן החלון יושב בקו הנכון. הקיר בשרטוט הוא קיר כפול דופן עם בידוד תרמי בצמר זכוכית. -
חיפוי קיר בלוח מרוכב בחלוקות קיר מסך
18.07.07חיפוי קיר בלוח פח מרוכב (בדומה לאלוקובונד) בין פנלים של קיר מסך. בפרט חתכים אופקיים ואנכיים המראים את כל המפגשים כולל: פנל רצפה וגבס פנימי, מחסום עשן, עוגן לקיר המסך, בידוד בצמר זכוכית, מחסום אש וחיבור תקרת פנים. -
חלון בקיר מחופה אבן ירושלמית
23.01.09חתך אנכי בפרט חיבור חלון אלומיניום לקיר מחופה אבן ירושלמית. לצורך קבלת החלון מבוצע משקוף עיוור בולט ואיטום כך שלאחר החיפוי באבן החלון יושב בקו הנכון. סף החלון התחתון מקבל לוח פח על מנת להרחיק את המים עד מעבר לאבן המחפה. הקיר בשרטוט הוא קיר כפול דופן עם בידוד תרמי בצמר זכוכית. -
רצף חלונות (סטריפ) - חתך אנכי
7.01.08חתך אנכי בסטריפ חלונות (פס חלונות). כולל סף חלון תחתון על גבי קורת בטון, קיר גבס מצידו הפנימי וסף אלומיניום בצידו החיצוני. סף עליון המראה את חיפוי האבן של המבנה והאיטום ביריעת איטום במפגש עם חלון האלומיניום. ראה גם חתך אופקי. -
חלון מרחב מוגן בקיר מחופה אבן
10.07.07חתך אופקי ואנכי בחלון ממ"ד הכולל מגן חלון הנכנס לכיס מאחורי חיפוי האבן. ניתן לראות בפרט הבניה את עיגון האבן מעל לפתח, הבידוד התרמי וחלון הממ"ד. -
דופן חלון מחופה לבנים
1.08.07פרט דופן חלון בחתך אופקי ובאקסונומטריה המראה את חיפוי הצד בלבני סיליקט בעזרת אלמנט פינה מיוחד. הפרט מראה את חלון המונובלוק והשלמת יציקה עם משקוף עיוור המתאימים את הפתח בקיר לגודל הנדרש. הלבנים מודבקות, עם פוגה ואדן החלון התחתון הוא אלמנט טרומי.







