חיפוש - חלונות , תרמי |1|
לא מצאת? פשוט חפש.
-
חלון פתיחה פנימה עם שדות קבועים
5.07.07תוכנית וחתך למפגש חלון וקיר בטון המחופה מצידו הפנימי בבידוד תרמי ולוח גבס ומצידו החיצוני באבן. בפרט נראה חלון האלומיניום, מדרגת בטון המקבלת משקוף עיוור, בידוד צמר זכוכית ולוח גבס מצידו הפנימי של קיר הבטון. חלון האלומיניום עצמו בנוי מחלקים קבועים ויחידה אחת שיש לה כנף פתיחה על ציר צד. -
חלון במחיצה או קיר בידוד מאיטונג
28.04.07פרט חזית לבניית פתח לחלון בבלוק אינטונג הכולל לינטל (קורת גישור מעל לפתח) ואיטום בפוליאוריטן מוקצף במפגש עם הגג היצוק. -
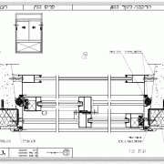
רצף חלונות בקיר מחופה פח מורכב - חתך אופקי
2.07.07פרט חתך אופקי במפגש קיר מחופה קסטות פח עם רצף חלונות. הפרט מראה את חיבור החיפוי אל הקיר באזור החלון ואת חיבור החלון עצמו אל קיר הבטון. צידו הפנימי של הקיר מחופה בלוחות גבס על גבי ניצבים כשבינם לבין קיר הבטון מוצמדות יריעות צמר זכוכית לקבלת בידוד תרמי. -
חלון סקיילייט בגג רעפים על קונסטרוקצית עץ
12.06.07פרט חתכים וחזית של חלון סקיילייט בגג רעפים הבנוי על אגדים ומרישי עץ. הפרט מראה את הבידוד התרמי בשתי שכבות ואת האיטום והסגירה בתעלות פח מסביב לחלון עצמו. תחתית הגג מחופה לוחות גבס וכוללת מחסום אדים. -
חלון פתיחה פנימה בקיר מחופה אבן
2.07.07תוכנית וחתך בחלון ציר צד, פתיחה פנימה, בקיר מחופה מצידו החיצוני באבן ומצידו הפנימי בגבס. הפרט נראה את אף המים בסף העליון ומדרגת הבטון בסף התחתון. צד החלון מחופה גם הוא אבן. הקיר בחלקו הפנימי מבודד על ידי קיר גבס עם בידוד תרמי ולוח גבס. -
חתך אופקי בחלון בקיר מחופה אבן ירושלמית
4.07.07חתך אופקי בפרט חיבור חלון אלומיניום לקיר מחופה אבן ירושלמית. לצורך קבלת החלון מבוצע משקוף עיוור בולט ואיטום כך שלאחר החיפוי באבן החלון יושב בקו הנכון. הקיר בשרטוט הוא קיר כפול דופן עם בידוד תרמי בצמר זכוכית. -
חלון בקיר מחופה אבן ירושלמית
23.01.09חתך אנכי בפרט חיבור חלון אלומיניום לקיר מחופה אבן ירושלמית. לצורך קבלת החלון מבוצע משקוף עיוור בולט ואיטום כך שלאחר החיפוי באבן החלון יושב בקו הנכון. סף החלון התחתון מקבל לוח פח על מנת להרחיק את המים עד מעבר לאבן המחפה. הקיר בשרטוט הוא קיר כפול דופן עם בידוד תרמי בצמר זכוכית. -
כיפות גאודזיות עם בידוד תרמי- מבנה אקולוגי
10.06.21...ים ויתרונותהתקנת הכיפה- תהליך הקמה ופירוק מהיר ופשוט מבנה יציב ,חזק ועמיד בכל תנאי מזג האוויר. ניתן להוסיף אלמנטים לכיפה כגון: חלונות, תאורה,רצפה, דלת ואלמנטים נוספים מגוון שימושים בשוק הפרטי, העסקי: החל מפתרון לכיתות לימוד, תערוכות ותצוגות, חללי עבודה , חללי מגורים, מחנאות ועוד. נראות שונה- דגש על נראות וחווית לקוח וחדשנית! בידוד התרמי של פולינום- בידוד אפקטיבי שעובד בכל מזג אוויר נוח וקל ליישום על גבי הכיפה וחוסך בהוצאות האנרגיה באופן משמעותי. -
ציפוי קירות קימים בלוחות גבס - מפגש עם פתח חלון או דלת
2.09.07חתך אופקי דרך קירות בנויים המחופים בלוחות גבס ובידוד תרמי. הפרט מראה את הקיר המקורי, המחופה בטיח ואת הנדרש כדי להוסיף לו את החיפוי החדש. מגן קצה מפח ובו ניצב עץ סוגר את קצה הקיר ליד פתח החלון (4 אלטרנטיבות). פרופילי אומגה מחזיקים את לוחות הגבס כשבידוד תרמי מוכנס בין השכבות. האלטרנטיבות הן לחלון ציר הנפתח אל מישור הקיר, לחלון המיושר עם הקיר המקורי ולחלון שקוע. -
חלון הזזה עם תריס גלילה - 3
2.02.11חתך אנכי בסף התחתון של החלון. בפרט ניתן לראות את חיפוי הקיר מצידו הפנימי במעטפת גבס עם בידוד תרמי בצמר זכוכית, את המדרגה בבטון ואיטום הסף הנדרש ואת תריס הגלילה. קובץ משותף - 3 מ 4. דגם רום 120 של אקסטל -
חלון אלומיניום - הזזה פתיחה לכיס בנוי
25.01.10חלון אלומיניום עם שתי כנפיים הזזה אל כיס בנוי כולל בידוד תרמי מקלקר. חלון 3 כנפיים - זיגוג, רשת ותריס כנפי רפפה. -
חלון הזזה עם תריס גלילה - 2
2.02.11חתך אופקי בחלק הקבוע בתחתית החלון (בהתקנה בקיר בטון). בפרט ניתן לראות את חיפוי הקיר מצידו הפנימי במעטפת גבס עם בידוד תרמי בצמר זכוכית ואת המשקוף הסמוי שתופס את קצה הקיר. קובץ משותף - 2 מ 4. דגם רום 120 של אקסטל -
חלון הזזה עם תריס גלילה - 1
2.02.11חתך אופקי בחלון הזזה עם תריס גלילה בהתקנה בקיר בטון. בפרט ניתן לראות את חיפוי הקיר מצידו הפנימי במעטפת גבס עם בידוד תרמי בצמר זכוכית ואת המשקוף הסמוי שתופס את קצה הקיר. קובץ משותף - 1 מ 4. דגם רום 120 של אקסטל -
חלון ותריס מונובלוק עם פתח טיפול תחתון
15.09.10חתך חלון עם תריס מונובלוק בעל פתח טיפול תחתון. הפרט צר יחסית ונכנס בקיר בעובי 24 ס"מ (לפני גמר). בחתך ניתן לראות את הקיר המחופה אבן מבחוץ וטיח מצידו הפנימי, פתח הטיפול לתריס הכולל בידוד תרמי וסף האדן התחתון. פרט ווינר של אלומינה. -
חלון הזזה עם תריס גלילה - 4
2.02.11חתך אנכי בסף העליון של החלון, בכיס הנדרש בבטון לקבלת תריס הגלילה. בפרט ניתן לראות את חיפוי הקיר מצידו הפנימי במעטפת גבס עם בידוד תרמי בצמר זכוכית, את הבידוד לארגז התריס ואת המשקוף העליון של החלון. קובץ משותף - 4 מ 4. דגם רום 120 של אקסטל







