סימבולים / בלוקים
חלק זה של הספריה מרכז עבור אדריכלים בלוקים וסימבולים לתוכנת אוטוקאד ותוכנות שרטוט דומות. אם ברצונכם
למצוא בלוק להורדה, תוכלו לאתר אותו דרך מנוע החיפוש של האתר או על פי
התגיות.
סימבולים / בלוקים אחרונים
-
גוף תאורה עומד/ מנורה עומדת
5.04.20בלוק של מנורה עומדת או גוף תאורה עומדת. מתאים לסלון, לאיזור קריאה, לחדר שינה, לספריה. -
שולחן אוכל
5.04.20שולחן אוכל גדול עם כיסאות מסביב במידה 2.20/110 -
משאית מידות רוחב אורך
5.04.20מידות משאית אוטוקד משאית כולל יחידת קירור ומרכב לאישור משרד הבריאות -
מעבה יחידה חיצונית
5.04.20תוכנית DWG של יחידת LG חיצונית בכל החתכים -
תכנון חדר שינה
5.04.20תכנית חדר שינה הורים הכוללת חדר רחצה צמוד, מיטה, ארון ופינת איפור. בחדר הרחצה ישנו מקלחון, אסלה מרחפת וכיור קטן. השיפוץ כולל תכנון אינסטלציה וחשמל ועד שלב הסטיילינג. -
בלוקים מגוונים
5.04.20בלוקים מגוונים, כל סוגי הבלוקים שיכולים לשמש אדריכלים, מעצבים, מהנדסים, שוק רחב של אנשים. כל הגדלים והמידות, כולל אנשים להבנת הקנה מידה של הבלוק, ביחס לסביבתו הפתוחה. -
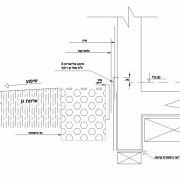
פרטי איטום
5.04.20פרטי איטום לקורות יסוד עם פוליה וצינור ניקוז מחורר בהיקף הבית -
פרט מעקה שתול
28.03.20מעקה שתול עם מאחז יד במרפסת בקופינג -
כל מיני אנשים במבט
28.03.20כל מיני אנשים במבט, יושבים עומדים מתקהלים מדברים והולכים -
פרט גג כרכוב
28.03.20פרט (גג ) כרכוב מפח מגולוון בקנה מידה -
חזית מכונת קפה תעשייתית
28.03.20חזית מכונת קפה תעשייתית לבית קפה/ חנויות נוחות וכד' -
מיטות , שולחנות , כיסאות
26.03.20הקובץ מכיל בתוכו שרטוט של מיטות, כיסאות ושולחנות -
דירת קבלן מחיר למשתכן
26.03.20דירת קבלן מחיר למשתכן, כולל מטבח, מקרר, כיריים, כיור, ספה, שטיח 230*160, שולחן בר, כסאות בר -
בלוקים לפורמט דף
26.03.20בלוקים לפורמט דף מ A3 עד A0. שימושי מאוד לכל שרטט. -
אגרטל פרחים
23.03.20אגרטל לפרחים ולכל מיני דברים שרוצים לשים בפנים -
גגות רעפים
23.03.20גג, ככות, גג רעפים, גג שטוח, פריסה -
דף 1 לעבודה בתכניות
23.03.20דף ראשון לעבודה, פורמט DWG מתאים להכל -
ריהוט חדר שינה
23.03.20בלוקים עבור ריהוט לחדר שינה וכל הבית -
חדר כושר- בלוקים
23.03.20בלוקים של מכשירים בחדר כושר כולל ספינינג ,מעמד למשקולות, ומכשיר כופף ברך -
ספרייה בגובה כפול
23.03.20ספריית ברזל אורבנית בגוון שחור. הספרייה בגובה כפול ובעיצוב מוקפד.
לא מצאת? פשוט חפש.
רשימות סימבולים / בלוקים על פי תגיות
המומחים של Saf
-
מושי גיטליס - צלם אדריכלות
אזור עבודה: כל הארץטלפון: 052-4759925
-
הדמיות אדריכליות | MHVIZUAL
אזור עבודה: כל הארץטלפון: 0543020670
-
הדר כהן - שירותי שרטוט למעצבים
אזור עבודה: כל הארץטלפון: 0522454389
-
ארטיום שירותי שרטוט/שומה וטאבו
אזור עבודה: כל הארץטלפון: 0527022177
-
קריסטל גרפיקס הדמיות בתלת מימד
אזור עבודה: כל הארץטלפון: 0545402128
חדשות אחרונות
-
מחפשים מקצוע חיוני בלב מערך ההנגשה?
4.11.25מורשה לנגישות מבנים, תשתיות וסביבה (מתו״ס): מקצוע חיוני בלב מערך ההנגשה בישראלצורך חברתי ורקע חוקיהנגשת מבנים במרחב הציב... -
חוקרים בטכניון זכו בפרס עיצוב יוקרתי
1.11.25חוקרים בטכניון זכו בפרס עיצוב יוקרתי על פיתוח טכנולוגיה חדשה להגנה על שתילים צעיריםהדוקטורנט עופר אסף ופרופ' אהרן שפרכר ... -
פרויקטי גמר מהחוג לארכ בביהס לעיצוב של אונ חיפה
26.07.25כשהקרקע נשמטת - האדריכלות מגיבהמהנגשה אזרחית מחודשת של קריית הלאום בירושלים, דרך תכנון מחדש של מרחב תעשייתי פחמי בחדרה, ...
תרום גם אתה!
הוסף קובץ לספרייה הפתוחה של אתר Saf. טען קובץ מקורי
הוסף קובץ לספרייה הפתוחה של אתר Saf. טען קובץ מקורי
עקוב אחר סימבולים / בלוקים חדשים באתר.
RSS









