חיפוש - פרטי בנין , גג רעפים , מרזב |1|
לא מצאת? פשוט חפש.
-
מרזב פח בקצה גג רעפים
29.10.07פרט, חזית וחתך במרזב פח בקצה גג רעפים. גג הרעפים בנוי על תשתית אגדים מעץ ובקצהו מונח על קרניז בטון. המים מהגג מתנקזים בשפיכה חופשית לתעלת פח אופקית המובילה אותם אל המרזב. -
גג רעפים עם תעלה סמויה בארגז כפרי ותקרת גבס
15.04.08פרט קצה גג רעפים, עם בידוד ביריעת איטום וצמר סלעים מעל ובין הקורות, תעלה סמויה, מרזב מובנה בקיר, ארגז עץ כפרי, תקרת לוחות גבס. רעפי אקרשטיין -
קצה גג רעפים עם תעלה סמויה, קורות גג גלויות למחצה
5.11.08קצה גג רעפים, קורות גלויות, בידוד ביריעת איטום מעל לקורות, וצמר סלעים ולוחות גבס בין הקורות, תעלה סמויה, מרזב מובנה בקיר, רעפי אקרשטיין. -
קצה גג רעפים עם תעלה סמויה וארגז רוח מבטון
22.10.07פרט חתך אנכי בקצה גג רעפים בשיפוע של 40 אחוז. הגג מותקן מעל גג בטון שטוח. מעל לאגדים לוח לביד ועליו יריעות איטום, מרישים בשני הכוונים ורעפים. הרעף השני מקצה הגג הינו רעף מנקז המוליך את המים אל תעלת פח מגלוון נסתרת. ארגז רוח עשוי בטון ומטוייח סוגר את הקצה התחתון. תעלת הניקוז מוליכה את המים אל מרזב סמוי בקיר. -
תעלת פח ומרזב חיצוני בגג רעפים
15.06.07מזחילה חיצונית בקצה גג רעפים המתנקזת למרזב פח חיצוני הצמוד אל הקיר. גג הרעפים בולט מקצה המבנה ובפרט נראה אלמנט החיבור בין התעלה והמרזב. -
קצה גג רעפים בשיפוע 60 אחוז עם תעלה סמויה
22.10.07חתך אנכי בקצה גג רעפים בשיפוע של 60 אחוז. בפרט זה הגג בנוי מעל גג בטון שטוח. תעלה סמויה אוספת את המים מהגג ומובילה אותם למרזב חיצוני. תעלת המרזב הנסתרת הפנימית עשויה פח מגלוון. גמר קצה הגג כגג רעפים בשפיכה חופשית, קורת אורן בולטת מתחת לסגירה בלוחות שקע תקע (נוטפדר). הבידוד התרמי אינו מפורט. -
קצה גג רעפים בשיפוע 30 אחוז עם תעלה סמויה
22.10.07פרט חתך אנכי בקצה גג רעפים עם תעלת ניקוז סמויה. הגג בנוי מעל גג שטוח מבטון. בידוד תרמי מושג על ידי הדבקת לוחות קלקר. גמר הגג עם קורות אורן בולטות וסגירה בלוחות עץ שקע - תקע. התעלה מותאמת במיקומה למרזב חיצוני. -
קצה גג רעפים עם תעלה סמויה לארגז בטון
22.10.07פרט קצה גג רעפים בשיפוע 40 אחוז. ניקוז הגג מבוצע דרך רעף מנקז בקצה המעביר את המים אל תעלת בטון ומשם למרזב בתוך הקיר. הפרט כולל בידוד תרמי בלוחות קלקר מעל לתקרת הבטון. לוח לביד ויריעת איטום מותקנים על גבי האגדים ומעליו מרישים בשני הכוונים. -
תקרה מחופה עץ מתחת לגג רעפים
15.04.08פרט חתך בגג רעפים מתחתיו מותקנת תקרת עץ. קורות הגג עשויות עץ אורן ובולטות מתחת לתקרה. חיפוי התקרה בלוחות נוטפדר. מעל לתקרה יריעת איטום, עליה מזרוני בידוד. ניקוז הגג נעשה דרך רעף מנקז אל תעלה סמויה מתחת לרעפים. -
תעלת ניקוז בגג וירידת מרזב
10.06.24קרניז בנוי בגג רעפים כולל תעלת ניקוז וירידת מרזב -
פרט גיא בגג רעפים עם תעלה סמויה
10.01.12פרט איזומטרי המראה פינת גיא בגג רעפים בו הניקוז מבוצע לתעלה סמויה המכוסה ברעף מנקז. התעלה עשויה פח ובפרט נראות שתי אפשרויות למרזבים, מרזב קבור בקיר ומרזב חיצוני. גיא הגג מוגן על ידי מזחלת פח מתחת לרעפים ובמקום בו היא מגיעה מעל לתעלת הניקוז יש בה פתח נקז . -
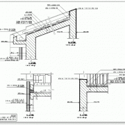
מפגשי גג רעפים עם מזחלת וקיר בטון
24.09.07ארבעה פרטים בגג רעפים הבנוי על גג בטון משופע. 1. מפגש עם מזחלת פח הבנויה בכרכוב בטון. 2. מפגש רכס עם קיר בטון ניצב. 3. מפגש גג לאורך קיר מקביל לשיפוע. 4. מפגש מזחלת עם מרזב צד. בפרטים נראה הגג הבנוי מעל לגג בטון משופע וכולל בידוד בצמר זכוכית ואת כל פרופילי הפח הנדרשים לסגירת הקצוות מפני חדירת מים.







