היי כולם,
אנחנו ( בשעה טובה ) מתחילים בבניית הבית שלנו.
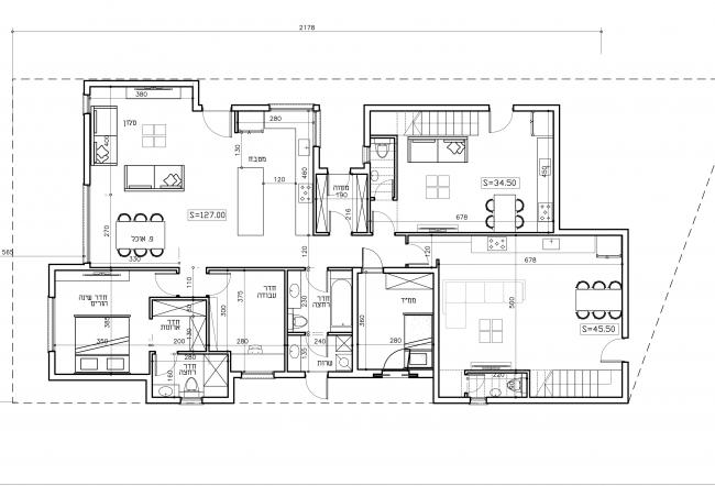
שטח כללי 592 מ"ר
מותר לנו לבנות עד 290 מ"ר
אנחנו צריכים לחלק לשלוש ייחדות נפרדת ( עם קשר ביניהן ) כשאחת מהן היא 130 מטר לפחות.
שטח מגרש 12.5x45
מתוך ה - 290 מ"ר מותר לבנות על הקרקע רק 206 מטר השאר קומה שניה
צרפתי את התוכנית שהכנתי היום.
רעיונות, הערות והארות יתקבלו בברכה
כיוון שזו הפעם הראשונה שאנחנו בונים לבד אשמח לעזרתכם האדיבה
תודה מראש
עמית
אנחנו ( בשעה טובה ) מתחילים בבניית הבית שלנו.
שטח כללי 592 מ"ר
מותר לנו לבנות עד 290 מ"ר
אנחנו צריכים לחלק לשלוש ייחדות נפרדת ( עם קשר ביניהן ) כשאחת מהן היא 130 מטר לפחות.
שטח מגרש 12.5x45
מתוך ה - 290 מ"ר מותר לבנות על הקרקע רק 206 מטר השאר קומה שניה
צרפתי את התוכנית שהכנתי היום.
רעיונות, הערות והארות יתקבלו בברכה
כיוון שזו הפעם הראשונה שאנחנו בונים לבד אשמח לעזרתכם האדיבה
תודה מראש
עמית







