חיפוש - פרטי בנין , ארונות |1|
לא מצאת? פשוט חפש.
-
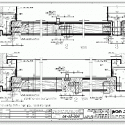
ארונות מטבח בחתך
13.01.22ארונות מטבח בחתך לשימוש בתכנית -
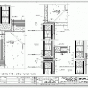
נגרות - ארונות בנוים, משקוף פח מכופף וכנף עץ
9.12.07מפתח פרטי נגרות לארונות בנוים בקיר העשוים משקןף פח מכופף וכנף עץ ופורמיקה. הארון מורם מפני הריצוף. פרופיל הפח משמש גם מגביל לטיח. הפרטים עצמם נמצאים כאן: חתכים אנכים חתכים אופקיים -
נגרות - ארונות בנוים, משקוף פרופיל פלדה וכנף עץ
25.11.07מפתח פרטים לארונות בנוים בקיר העשוים מסגרת פלדה ובתוכה כנף עץ ופורמיקה. הארון מורם מפני הריצוף. הפרופיל השמש מסגרת לארון הוא פרופיל L מפלדה. הפרטים עצמם נמצאים כאן: חתך אנכי בארון בנוי, משקוף פרופיל פלדה וכנף עץ חתך אופקי בארון בנוי, משקוף פרופיל פלדה וכנף עץ -
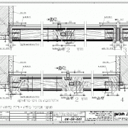
נגרות - ארונות מטבח - תוכנית מפתח
18.05.08תוכנית מפתח עקרונית לפרטי נגרות מטבח. הפרטים עצמם מופיעים בדפים הבאים: תוכנית וחתך כללים חתך במשטח ובמגירה חתך אופקי בארון תחתון פרטי צוקל חתך אופקי בארון עליון חתך בארון כיור חתך אנכי בארון עליון -
נגרות - חתך אופקי בארון בנוי, משקוף L פלדה וכנף עץ
9.12.07שני חתכים אופקיים בארונות בנוים בקיר העשוים מסגרת פלדה ובתוכה כנף עץ ופורמיקה. החתכים מראים כנף אחת או שתי כנפיים. הפרופיל המשמש מסגרת לארון הוא פרופיל L מפלדה. מפתח פרטים לארון זה כאן -
נגרות - חתך אופקי בארון בנוי, משקוף פח מכופף וכנף עץ
9.12.07שני חתכים אופקיים בארונות בנוים בקיר. המשקוף עשוי פח מכופף המשמש גם כגבול לטיח במעין ניתוק. כנף עץ ופורמיקה סוגרים את הארון. החתכים מראים כנף אחת או שתי כנפיים. סרגלי עץ מקשיחים את מסגרת הכנף. מפתח פרטים לארון זה כאן -
נגרות מטבח - חתך במשטח ובמגירה
28.10.07פרט חתך אנכי בארון מטבח עשוי לוח נגרים ומצופה פורמיקה. הפרט מראה את משטח העבודה ומגירה מתחתיו. מיקום החתכים על פי תוכנית זו. -
נגרות מטבח - חתך אנכי בארון עליון
4.04.08פרט חתך אנכי בארון מטבח עשוי לוח נגרים ומצופה פורמיקה. הפרט מראה את תליית הארון ומרכיביו כולל המדף הפנימי. מיקום החתכים על פי תוכנית זו. -
נגרות מטבח - חתך אופקי בארון תחתון
28.10.07פרט חתך אופקי בארון מטבח עשוי לוח נגרים ומצופה פורמיקה. הפרט מראה את תליית הארון, הדלתות והצירים, המפגש עם הקרמיקה על הקיר ועוד. מיקום החתכים על פי תוכנית זו. -
נגרות מטבח - תוכנית וחתך כללים
28.10.07חתך ותוכנית כללים לארונות מטבח. הנ"ל משמש תכנית לפרטים המופיעים בדפים אחרים. מיקום החתכים על פי תוכנית זו. -
נגרות - חתך אנכי בארון בנוי, משקוף פרופיל פלדה וכנף עץ
25.11.07חתכים אנכיים בארונות בנוים בקיר העשוים מסגרת פלדה ובתוכה כנף עץ ופורמיקה. החתכים מראים את הסף התחתון המורם מהרצפה, הפרדה למדף אמצעי וסף עליון. הפרופיל המשמש מסגרת לארון הוא פרופיל L מפלדה. מפתח פרטים לארון זה כאן -
נגרות מטבח - חתך אופקי בארון עליון
28.10.07פרט חתך אופקי בארון מטבח עשוי לוח נגרים ומצופה פורמיקה. הפרט מראה את תליית הארון ומרכיביו כולל מפגשי הצירים והמפגש עם הקרמיקה בדופן צד. מיקום החתכים על פי תוכנית זו. -
נגרות - חתך אנכי בארון בנוי, משקוף פח מכופף וכנף עץ
9.12.07שני חתכים אנכים בארונות בנוים בקיר. חתך תחתון מראה את המסגרת מעל לפנל הריצוף. החתך העליון מראה מלבד המשקוף גם מדף אמצעי. המשקוף עשוי פח מכופף משמש גם גבול לטיח במעין ניתוק. כנף עץ ופורמיקה סוגרים את הארון. סרגלי עץ מקשיחים את מסגרת הכנף. מפתח פרטים לארון זה כאן -
נגרות מטבח - פרטי צוקל
28.10.07פרט חתך אנכי בסוקל תחתון של ארון מטבח. לפרט שתי אלטרנטיבות. באחת הארון מונח על במה בנויה קטנה ובשניה הסוקל נגרי ומצופה פורמיקה. מיקום החתכים על פי תוכנית זו.







