חיפוש - פרטי בנין , חלונות |1|
לא מצאת? פשוט חפש.
-
רצף חלונות (סטריפ) - חתך אופקי
7.01.08חתך אופקי בסטריפ חלונות (פס חלונות). כולל מפגש חלונות קבועים, חלונות נפתחים, עמודון פינה. ראה גם חתך אנכי. -
רצף חלונות (סטריפ) - חתך אנכי
7.01.08חתך אנכי בסטריפ חלונות (פס חלונות). כולל סף חלון תחתון על גבי קורת בטון, קיר גבס מצידו הפנימי וסף אלומיניום בצידו החיצוני. סף עליון המראה את חיפוי האבן של המבנה והאיטום ביריעת איטום במפגש עם חלון האלומיניום. ראה גם חתך אופקי. -
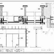
רצף חלונות בקיר מחופה פח מורכב - חתך אנכי
2.07.07פרט חתך אנכי במפגש קיר מחופה קסטות פח עם רצף חלונות. לחלון מבחוץ יש כנף הצללה קבועה. הפרט מראה את חיבור החיפוי אל הקיר בסף העליון והתחתון של החלון ואת האיטום למניעת חדירת מים. צידו הפנימי של הקיר מחופה בלוחות גבס. -
רצף חלונות בקיר מחופה פח מורכב - חתך אופקי
2.07.07פרט חתך אופקי במפגש קיר מחופה קסטות פח עם רצף חלונות. הפרט מראה את חיבור החיפוי אל הקיר באזור החלון ואת חיבור החלון עצמו אל קיר הבטון. צידו הפנימי של הקיר מחופה בלוחות גבס על גבי ניצבים כשבינם לבין קיר הבטון מוצמדות יריעות צמר זכוכית לקבלת בידוד תרמי. -
רצף חלונות בקיר מחופה פח מורכב - מפתח
2.07.07מפתח פרטים לשני דפים המפרטים את חיבור החלונות בקיר מחופה לוחות פח (קסטות). חתך אופקי חתך אנכי -
רצף חלונות אלומיניום - חתך אופקי
16.10.07פרטי הרכבה עקרוניים לרצף חלונות אלומיניום. 1. פרופיל פלדה לחיזוק בין שני חלונות. 2. פרופיל קצה אל משקוף עיוור מפלדה וסיום אל טיח או שיש בצד החיצוני. פרט זה הינו המשלים ל פרטי חתך אנכי -
חלון ציר צד עם תריס גלילה ידני
21.06.07חתך בחלון הכולל תריס גלילה עליון מונובלוק. פתח הטיפול לתריס נראה מצידו הפנימי של החלון וגודלו על פי גובה התריס הנדרש. -
מסגרות לאלומיניום - רצף חלונות נגררים
22.08.07פרט עקרוני למשקוף עיוור מפלדה כהכנה לחלונות אלומיניום. פרופיל הפלדה מעוגן לבטון והפרט מראה גם פרופיל מחלק בין חלונות ברצף. -
מערך חלונות בגג רעפים
12.06.07מערך של ארבע חלונות גג (סקיילייט) בגג רעפים הבנוי על קונסטרוקצית עץ. בפרט ניתן לראות חזית וחתך ובו מיקום תעלות הניקוז, האיטום והבידוד התרמי הנדרשים. -
ויטרינת חזית בעיצוב תעשיתי - חתך אופקי
14.09.08חתכים אופקיים בויטרינת זכוכית הכוללת דלת כניסה. הויטרינה ניגשת אל קיר צד מחופה אבן בצידו החיצוני וגבס בצידו הפנימי. -
ויטרינת אלומיניום זכוכית, פרט חיבור לקיר מחופה פח
20.05.07פרט חתך אופקי בחיבור ויטרינת אלומיניום זכוכית אל קיר בטון מחופה פח מרוכב מבחוץ ולוחות גבס מבפנים. -
ויטרינת אלומיניום זכוכית, פרט חיבור לקיר אבן
20.05.07פרט חתך אופקי בחיבור ויטרינת אלומיניום זכוכית אל קיר בנוי בחיפוי אבן מבחוץ ולוחות גבס מבפנים. עמוד הויטרינה גלוי בצידו הפנימי. -
ויטרינת אלומיניום זכוכית, פרט רפפה עליונה וחיבור אל חלון.
15.10.07פרט חתך אנכי בחיבור ויטרינת אלומיניום זכוכית המראה את חיבור רפפת האלומיניום הקבועה אל פרופיל החלון שבצד הדלת. -
חלון פתיחה פנימה בקיר מחופה אבן
2.07.07תוכנית וחתך בחלון ציר צד, פתיחה פנימה, בקיר מחופה מצידו החיצוני באבן ומצידו הפנימי בגבס. הפרט נראה את אף המים בסף העליון ומדרגת הבטון בסף התחתון. צד החלון מחופה גם הוא אבן. הקיר בחלקו הפנימי מבודד על ידי קיר גבס עם בידוד תרמי ולוח גבס. -
רצף חלונות אלומיניום - חתך אנכי
16.10.07פרטי הרכבה עקרוניים לרצף חלונות אלומיניום. 1. סף עליון אל משקוף עיוור ואיטום לוח שיש חיצוני. 2. סף תחתון עם אדן מאבן נסורה, מדרגה למשקוף עיוור ואף מים. פרט זה הינו המשלים ל פרטי חתך אופקי







