התייעצות לגבי סידור חדרים

פורום עיצוב פנים זה המקום לשאול מעצבי פנים, להתלבט, להתייעץ ולקבל רעיונות. מוזמנים לשאול בנוגע לעיצוב הבית, הדירה, העסק, מוסד או כל מבנה אחר, לבקש ייעוץ בנושאי עיצוב עם בעלי מקצוע בתחום וקולגות וכמובן לתרום מניסיונכם בדיונים השונים - אז איזה עיצוב פנים מתאים לכם?

יש לשמור על כללי הפורום, פורום עיצוב פנים לא נועד לפרסומות והן יימחקו, כולם מוזמנים לשאול ולענות בנושאי עיצוב פנים, לאחר מענה בעל ערך לשואלים ניתן להזמינם לפנות לנותן/ת המענה.

שלום לכל באי הפורום
שמי לייה סלה מעצבת פנים וסטייליסטית www.leeya-sella.com/
אני מנהלת את הפורום ואני כאן בשבילכם. אתם מוזמנים להעלות שאלות שקשורות לכל נושא העיצוב והסטיילינג.
רק בבקשה שימו לב שהשאלות מפורטות, שיש תוכניות ותמונות להמחשה כדי שאוכל לתת תשובה הכי מקצועית שאני יכולה ולא לשכוח להירשם לאתר, לפעמים אני צריכה עוד שאלה בפרטי (:
תנאי השימוש בפורום

התייעצות לגבי סידור חדרים

dana 28.10 (09:02)
שלום!
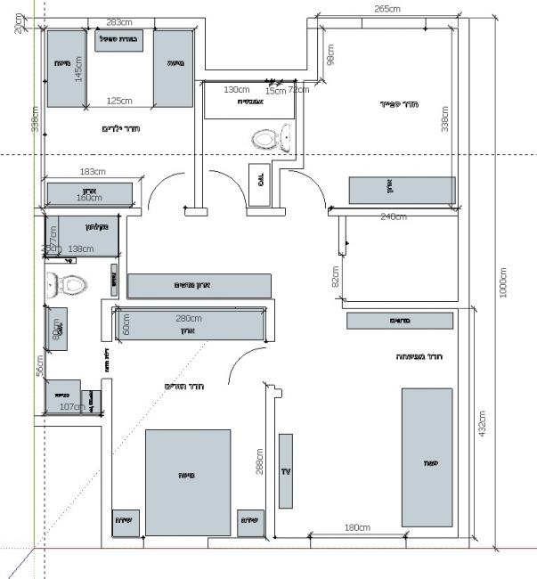
יש לנו בקומה העליונה בבית שאנחנו רוצים לשפץ 3 חדרי שינה ועוד חדר משפחה ובנוסף 2 חדרי אמבטיה.

אנחנו רוצים לשנות את פתח חדר ההורים כך שיבוא מחדר המשפחה ולא מהמסדרון (לאפשר ארון בגדים רחב ) ולפתוח מתוך חדר ההורים גישה לחדר המקלחת.

האם הסידור שעשינו נראה הגיוני?התייעצות לגבי סידור חדרים
הוסף תגובה קישור ישיר

שינוי כניסה לחדר שינה

אמיר קן-דרור 17.11 (17:09)
התכנון המוצע עונה על הצורך שהגדרת. יש בו הגיון ופונקציונליות. בהצלחה. אם זקוקים לייעוץ נוסף התקשרו 054-3123100שינוי כניסה לחדר שינה
הוסף תגובה

שלום לך,

עשירה 25.11 (10:38)
התכנון נראה טוב מאוד,
אם יש לך שאלות ספציפיות מוזמנת לפנות.
[email protected]

עשירה.
הוסף תגובה

התייעצות לגבי סידור חדרים

dana 28.10 (09:02)
תודה!
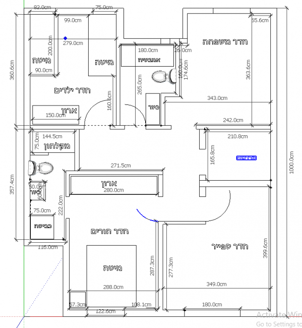
ומה לגבי מצב שבו הילדים גדלים וצריכים יותר מקום לשולחן וכו?
האם גם האופציה הזו טובה?
הכוונה היא שהילדים יעברו לחדר הספייר כשיש לו ואז חדר המשפחה ישאר סטטי בפינה העליונה למעלה.
זה נשמע הגיוני?התייעצות לגבי סידור חדרים
הוסף תגובה

שלום לך,

עשירה 25.11 (10:38)
רוצה לשלוח לי מייל?
[email protected]
הוסף תגובה