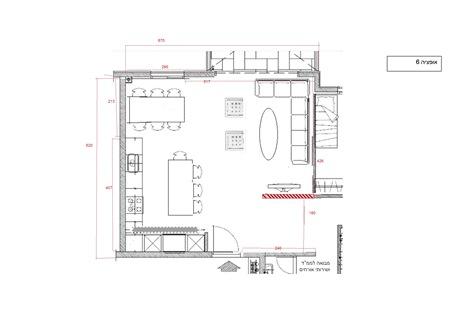
לל המגורים שלנו הוא ריבוע בגודל 6.20*6.70, כולל את המטבח (עם אי של 150), פינת אוכל (שולחן 160), יציאה למרפסת וסלון.
נכון להצעת הקבלן הטלויזיה על הקיר הארוך (שם נקודות החשמל), וספה ארוכה צפה בחלל
הייתי רוצה לשקול בניית קיר גבס (חצי גובה) לטלויזיה במקום המסומן, ולהפנות ספת ר´ (או שזלונג נטול גב) אליה.
הצפיה תהיה בישיבה ממול (2 מקומות) או בשכיבה על החלק הארוך (התנוחה האהובה עלינו).
1. מה דעתכם על הרעיון?
2. מהו גובה ואורך הקיר שצריך (הטלויזיה היום אצלנו היא 95 אורך, 65 רוחב. 2 רמקולים שכבר הייתי משקעת בקיר- 17- ס"מ רוחב כל אחד) המטרה היא לא לסגור את החלל ולא להאריך מידי את המסדרון ככל שניתן
3. מהו עובי הקיר שצריך, האם צריך חיזוקים מיוחדים?
4. האם יש להניח קונסולה (למפתחות וכו) על הקיר מימין לדלת הכניסה (240 בציור) או על הקיר החדש שיווצר? האם לחילופין לעשות נישה דקורטיבית מצד הקיר שפונה למסדרון?
אלף תודות
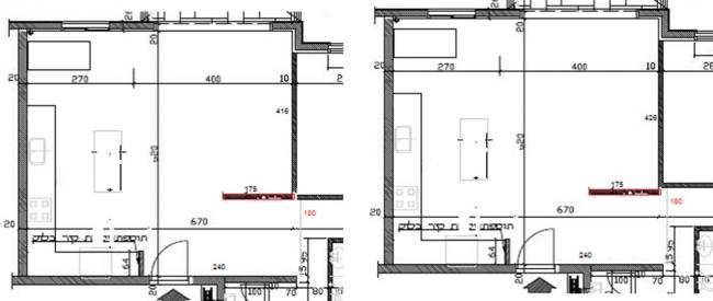
נכון להצעת הקבלן הטלויזיה על הקיר הארוך (שם נקודות החשמל), וספה ארוכה צפה בחלל
הייתי רוצה לשקול בניית קיר גבס (חצי גובה) לטלויזיה במקום המסומן, ולהפנות ספת ר´ (או שזלונג נטול גב) אליה.
הצפיה תהיה בישיבה ממול (2 מקומות) או בשכיבה על החלק הארוך (התנוחה האהובה עלינו).
1. מה דעתכם על הרעיון?
2. מהו גובה ואורך הקיר שצריך (הטלויזיה היום אצלנו היא 95 אורך, 65 רוחב. 2 רמקולים שכבר הייתי משקעת בקיר- 17- ס"מ רוחב כל אחד) המטרה היא לא לסגור את החלל ולא להאריך מידי את המסדרון ככל שניתן
3. מהו עובי הקיר שצריך, האם צריך חיזוקים מיוחדים?
4. האם יש להניח קונסולה (למפתחות וכו) על הקיר מימין לדלת הכניסה (240 בציור) או על הקיר החדש שיווצר? האם לחילופין לעשות נישה דקורטיבית מצד הקיר שפונה למסדרון?
אלף תודות










