חיפוש - פרטי בנין , פח , תקרה |1|
לא מצאת? פשוט חפש.
-
פרט תקרה אקוסטית
14.07.21חיבור תקרה אקוסטית לסינר גבס, תקרה מינרלית חצי שקוע -
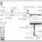
פרט תקרה
8.08.24פרט תקרה אקוסטית אריחים 60/60 סינר גבס חלון עליון פנל מבודד לוח גבס מחורר RHS 50/100/4 -
תוכנית תקרה מתוחה לכיוון אחד
1.05.24שרטוט דו מימדי של תקרה מתוחה בכיוון אחד, התכנית הינה תוכנית קונסטרוקציה בלבד -
מפגשי תקרה אקוסטית מונחת
3.09.07פרטי מפגשים לתקרה אקוסטית מינרלית מונחת. 1. תליית לוחות תקרה מינרלית מונחת ומפגש L+Z אל הקיר. 2. מפגש אל הקיר כשבקצה סגירה של סרגל צבוע לפני סרגלי הקיר. 3. סינר מונמך העשוי לוח דיקט ועליו חיפוי או צבע. -
פרופיל גישור בין מפלסי תקרה שונים
5.06.07פרופיל F לגישור בין מפלסי תקרה שונים בלוח גבס בודד בשילוב אריחי תיקרה מונחת או חצי שקועה. הפרופיל מאפשר סינר מינימלי בעובי נראה של 2 ס"מ בין מפלסי התקרות. הפרופיל קיים באלומיניום וכן בפח מגלוון. -
פרט ניתוק תקרה STR
3.11.20פרט STR לניתוק נקי בין תקרת גבס לקירות -
קיר לבני סיליקט - חגורה סמויה ומפגש עם תקרה
15.07.07שני חתכים אנכיים המראים פרט חגורה סמויה הבנויה בבלוק תעלה ופרט מפגש קיר הלבנים עם תקרת הבטון. -
מפגשי תקרה פריקה שקועה וחצי שקועה
3.09.07פרט תליה ומפגש עם קיר לתקרות אקוסטיות חצי שקועות ושקועות. בפרט נראה המפגש עם הקיר בפרופילים L+Z, אלמנט התליה והאריחים הפריקים של התקרה. הפרט זהה כמעט לחלוטין עבור רוב סוגי התקרות הפריקות - גבס, מינרלית, עץ, מתכת. -
מפגשים בתקרת מגשי פח
3.09.07פרטים ומפגשים שונים בתקרת מגשי פח עליה בידוד אקוסטי (צמר זכוכית וכדומה): 1. מפגש של תקרה וקיר ותליה של לוחות הפח בסרגלי L+Z או סרגלי אומגה. 2. מפגש תקרה וקיר בו בין פרופיל ה Z לפרופיל ה L מותקן לוח דיקט צבוע או מצופה. 3. סינר מינימלי לקצה תקרה המבוצע בעזרת לוח דיקט כנ"ל. -
פרט סינר גבס הכולל תעלת תאורה ומפגש עם תקרה פריקה
20.05.07מפגש סינר גבס מונמך מהתקרה ותקרה פריקה חצי שקועה עשויה מגשי פח. בסינר הגבס מותקנת תעלת תאורה עם פס תאורה אמריקאי ולובר פריזמטי. בידוד אקוסטי מעל לתקרה בצמר זכוכית. -
פרט מסילת תקרה לתליית תמונה בגלרייה
28.07.21פרט מסילה לתליית תמונה עבור גלריית אומנות קנה מידה 1:2 -
מפגשי תקרה אקוסטית עשויה לוחות מינרלים
29.10.07פרטי חתכים אנכיים בתקרה אקוסטית פריקה. חיבור L + Z אל הקיר, חיבורי T בין לוחות, סינר קצה במפגש עם קיר עשוי לוח דיקט. סינר אנכי עשוי דיקט מצופה פורמיקה. -
תקרה מחופה עץ מתחת לגג רעפים
15.04.08פרט חתך בגג רעפים מתחתיו מותקנת תקרת עץ. קורות הגג עשויות עץ אורן ובולטות מתחת לתקרה. חיפוי התקרה בלוחות נוטפדר. מעל לתקרה יריעת איטום, עליה מזרוני בידוד. ניקוז הגג נעשה דרך רעף מנקז אל תעלה סמויה מתחת לרעפים. -
פרט תליה לתקרה פריקה מונחת
20.05.07פרט תליה סטנדרטי לתלית תקרה פריקה מונחת, עשויה מגשי פח, על גבי פרופיל T התלוי מהתקרה בסרט מתכת כל 120 ס"מ (בנד).







